Garden and good transport links ideal for first-time buyers and young families.
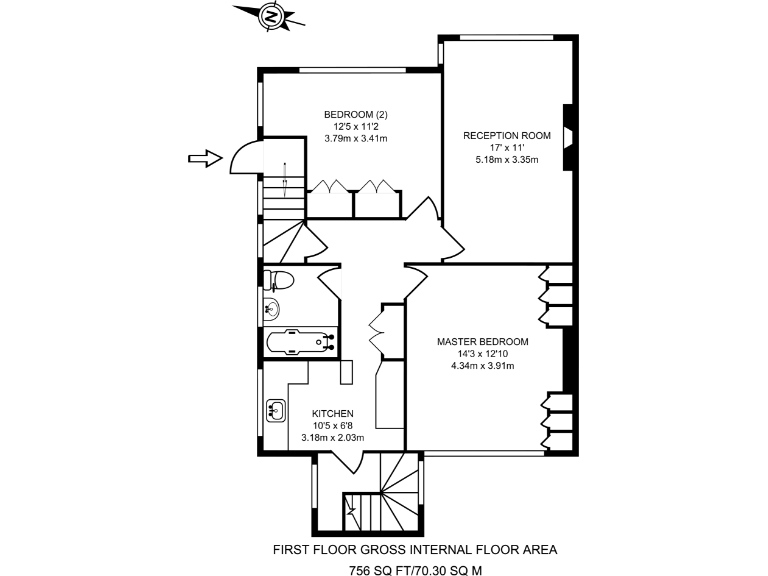
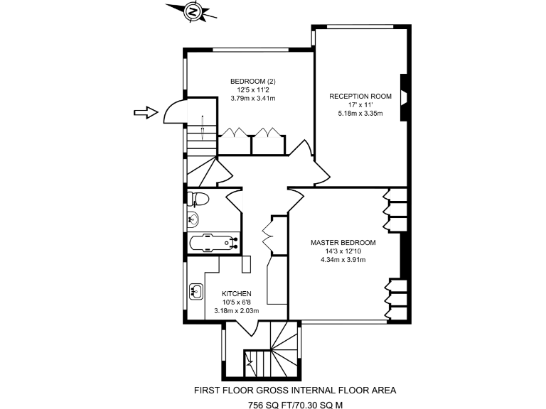
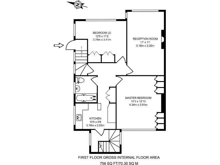
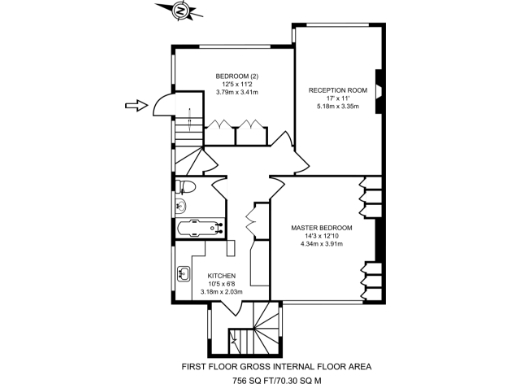
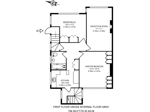
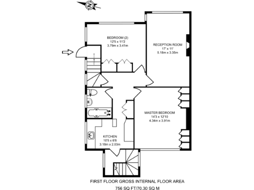
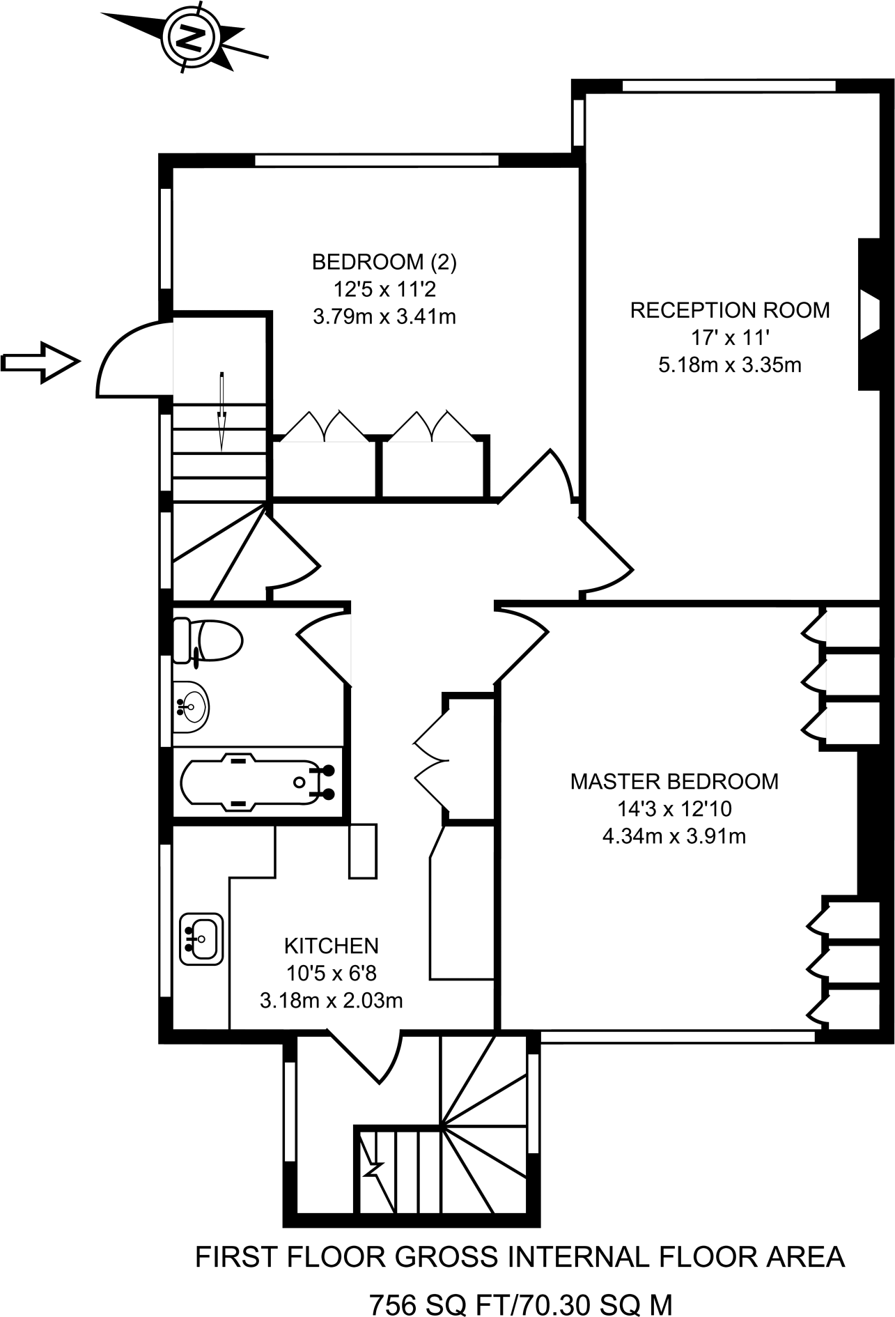
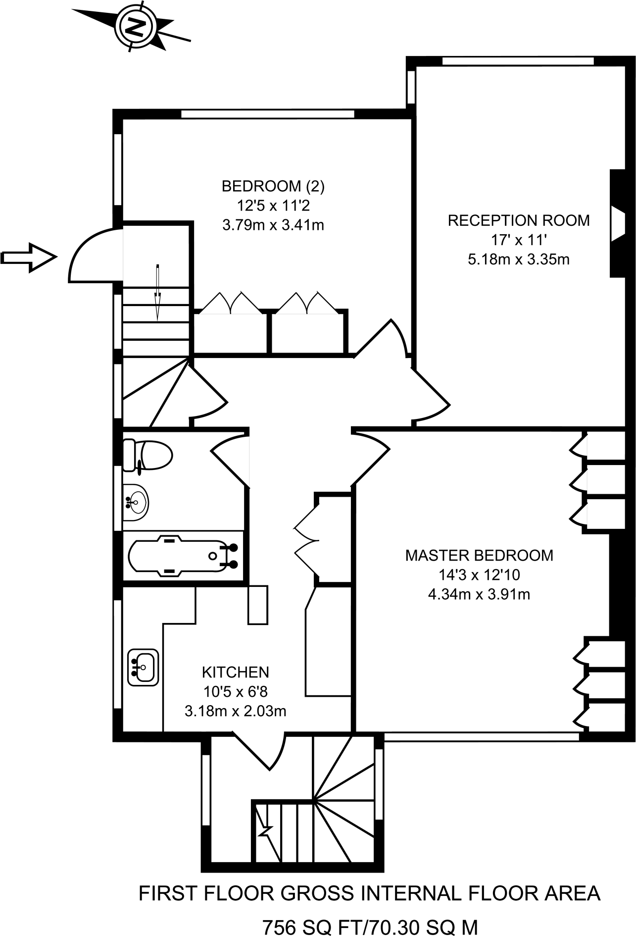
Spacious 2-bedroom first-floor maisonette, c.756 sq ft
Private garden — rare for a flat in this area
Close to Willesden High Road amenities and Jubilee Line
Fast broadband and excellent mobile signal for working from home
Leasehold with 109 years remaining; ground rent £150
Built 1967–75; mid-century brick construction
Decor is dated; cosmetic updating recommended
No confirmed wall insulation — potential energy upgrade needed
This light first-floor maisonette offers a practical two-bedroom layout across about 756 sq ft. Rooms are well proportioned, with a spacious reception room and a well-equipped kitchen that suit everyday family living or a first home for professionals. A private garden adds outdoor space rare for flats in the area.
The property sits close to Willesden High Road with shops, cafes and transport links nearby; Willesden Green (Jubilee Line) is within easy reach. Broadband speeds are fast and mobile signal is excellent, making the flat convenient for remote working and connected living. Several well-rated primary and secondary schools are nearby, appealing to young families.
The maisonette is leasehold with 109 years remaining and a modest ground rent of £150. Built in the late 1960s–1970s, the brick construction and double glazing are practical but some elements show dated decor and will benefit from cosmetic updating. The assumed lack of wall insulation means there is potential to improve energy efficiency and reduce running costs.
This home suits first-time buyers or young families seeking space and outdoor access at a reasonable price in NW10. It presents straightforward renovation potential rather than a full structural project; sensible updates would unlock more immediate comfort and value.
2 bedroom flat for sale in Chambers Lane, Kensal Rise, NW10 — £475,000 • 2 bed • 1 bath • 792 ft²
2 bedroom maisonette for sale in Chambers Lane, London, NW10 — £325,000 • 2 bed • 1 bath • 722 ft²
2 bedroom flat for sale in Bryan Avenue, Willesden, London, NW10 — £575,000 • 2 bed • 1 bath • 778 ft²
2 bedroom maisonette for sale in Chapter Road, Willesden Green, London, NW2 — £435,000 • 2 bed • 1 bath • 701 ft²
3 bedroom flat for sale in Palermo Road, Kensal Green, London, NW10 — £600,000 • 3 bed • 2 bath • 853 ft²
2 bedroom flat for sale in Westview Close, Neasden, London, NW10 — £385,000 • 2 bed • 2 bath • 683 ft²


































































































































































































