Modern five-bedroom detached plot with big outdoor potential for growing families.
Bay-windowed lounge and large open-plan kitchen/dining/family room
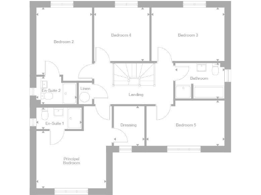
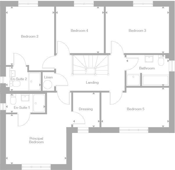
This newly built five-bedroom detached home in Seaham Garden Village is designed for family life and entertaining. A bay-windowed lounge and an impressive open-plan kitchen/dining/family room with French doors create generous ground-floor living space. The principal bedroom includes a dressing room and en-suite; a second guest bedroom also benefits from an en-suite. Practical additions include a laundry room, guest WC and an extended garage with driveway parking.
The house sits on a very large plot despite the internal footprint being relatively small (approximately 1,056 sq ft), offering scope for landscaping or outdoor additions. The property is energy-efficient with solar panels and is finished in modern brickwork. Fast broadband and excellent mobile signal support home working or streaming needs.
Notable practical points are the annual service charge of £119 and the development’s high local deprivation index, which may influence local services and resale dynamics. Some listing data is inconsistent (bathroom count differs in places), so buyers should confirm exact room counts and specifications at viewing. Overall, this is a contemporary family home with strong entertaining spaces and outdoor potential, best suited to buyers prioritising new-build amenities and a large plot for future improvement.
4 bedroom detached house for sale in Seaham Garden Village,
Seaham,
Durham,
SR7 8FB, SR7 — £355,000 • 4 bed • 1 bath • 988 ft²
4 bedroom detached house for sale in Seaham Garden Village,
Seaham,
Durham,
SR7 8FB, SR7 — £315,000 • 4 bed • 1 bath • 816 ft²
3 bedroom semi-detached house for sale in Seaham Garden Village,
Seaham,
Durham,
SR7 8FB, SR7 — £189,000 • 3 bed • 1 bath • 529 ft²
3 bedroom mews property for sale in Seaham Garden Village,
Seaham,
Durham,
SR7 8FB, SR7 — £181,000 • 3 bed • 1 bath
2 bedroom semi-detached house for sale in Seaham Garden Village,
Seaham,
Durham,
SR7 8FB, SR7 — £185,000 • 2 bed • 1 bath • 592 ft²
5 bedroom detached house for sale in Chapelgarth,
Sunderland,
SR3 2NY, SR3 — £418,000 • 5 bed • 2 bath • 1640 ft²










































































































