**Standout Features:**
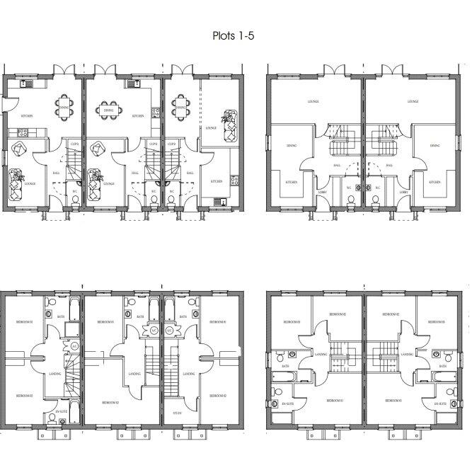
- Development plot with full planning permission for 6 dwellings
- Located in the picturesque village of Pimperne, Cranborne Chase AONB
- Flexible floor plans for 2 or 3-bedroom configurations
- Allocated parking for each residence and enclosed gardens
- Excellent local amenities and a strong community spirit
**Potential Downsides:**
- No existing services connected to the site, requiring future utility arrangements
- Situated in a rural area; transportation may be limited compared to urban centers
This exceptional development opportunity in Pimperne offers the chance to construct six thoughtfully designed dwellings, perfectly suited for families or investors seeking a tranquil village lifestyle. With full planning permission secured, the design allows for both terraced homes and a spacious detached property, accommodating flexible layouts of either 2 or 3 bedrooms. Each home will feature private gardens, allocated parking, and a welcoming community atmosphere.
Nestled within the acclaimed Cranborne Chase AONB, the site is part of a vibrant village with local amenities including a primary school, pubs, and recreational spaces. Enjoy strong community ties and a low-crime environment while capitalizing on the area's convenient road access, allowing for easy travel to Blandford, Salisbury, and beyond. Although not connected to services yet, the plot's large size offers ample potential for a family-friendly development. Secure this rare opportunity and invest in a future full of possibilities. Don’t miss out—demand for properties in such charming locations is steadily rising!
Plot for sale in Pimperne, Blandford Forum, Dorset, DT11 — £515,000 • 1 bed • 1 bath
Plot for sale in Shaftesbury, Dorset, SP7 — £950,000 • 1 bed • 1 bath
Plot for sale in Park Farm North, Martinstown, Dorchester, DT2 — £300,000 • 1 bed • 1 bath • 2084 ft²
Plot for sale in Wimborne Road, Blandford Forum, DT11 — £225,000 • 1 bed • 1 bath • 2800 ft²
Plot for sale in Church Street, West Stour, Gillingham, SP8 — £400,000 • 1 bed • 1 bath • 2690 ft²
Plot for sale in Todber, DT10 — £500,000 • 1 bed • 1 bath • 2125 ft²






















