**Standout Features:**
- Approximately 0.6 acres of land for development.
- Full planning permission for three detached dwellings.
- Sunny south-facing aspect with stunning countryside views.
- Attractive local stone design for homes, complete with garage facilities.
- Excellent accessibility to nearby towns and amenities.
**Summary Description:**
Discover a remarkable development opportunity in the charming village of Todber, set against the backdrop of the beautiful Dorset countryside. This 0.6-acre site is primed for the construction of three thoughtfully designed detached homes, all with full planning permission granted for their creation. The proposed dwellings boast elegant local stone finishes, warm brick plinths, and practical garage facilities, ensuring that both aesthetics and functionality are at the forefront.
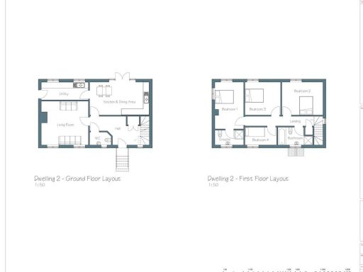
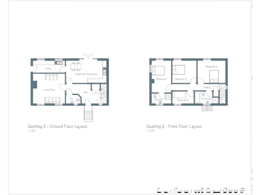
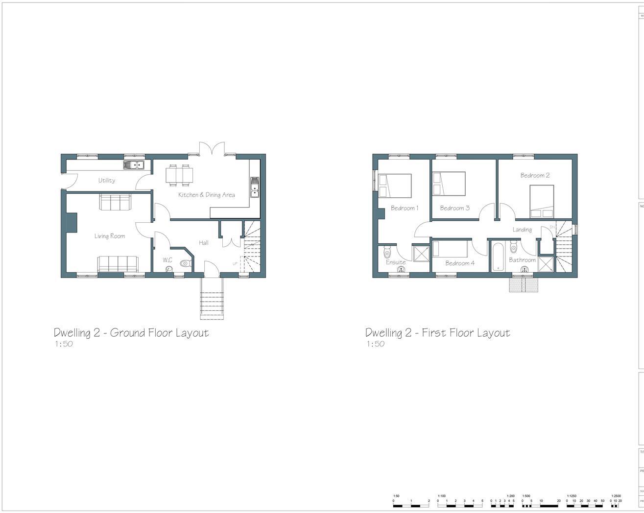
The expansive layout of Dwelling 1 encompasses approximately 2125 square feet, featuring spacious living areas, an inviting kitchen with a breakfast room, and four generous bedrooms including a master suite with an ensuite bathroom. Dwellings 2 and 3 follow with ample 1485 square feet of thoughtfully planned space, perfect for family living. With a south-facing aspect, residents will relish in abundant natural sunlight and picturesque countryside views, creating an idyllic rural retreat. The site also boasts convenient access to the quaint amenities of nearby Marnhull, as well as good road and rail links to Sturminster, Shaftesbury, and Gillingham.
Investors and families alike will appreciate the serene location, low crime rates, and capacity for a peaceful lifestyle in a tight-knit community. Don’t miss this exclusive opportunity to create a beautiful residential space in a sought-after area—this development site won’t be available for long!
Plot for sale in Wood Lane, Stalbridge, DT10 — £700,000 • 1 bed • 1 bath • 7865 ft²
Plot for sale in Shaftesbury, Dorset, SP7 — £950,000 • 1 bed • 1 bath
Plot for sale in Church Street, West Stour, Gillingham, SP8 — £400,000 • 1 bed • 1 bath • 2690 ft²
Plot for sale in Lot 1 - Ciderhouse Farm, Sigwells, Nr. Sherborne, Dorset, DT9 — £650,000 • 1 bed • 1 bath
Plot for sale in Over Compton, Sherborne, Dorset, DT9 — £495,000 • 1 bed • 1 bath • 4694 ft²
Plot for sale in Lower Road, Stalbridge, Sturminster Newton, DT10 — £200,000 • 1 bed • 1 bath • 1420 ft²










































































