Characterful three-bed house near top schools and scenic canal walks.
Three bedrooms plus loft conversion/home office
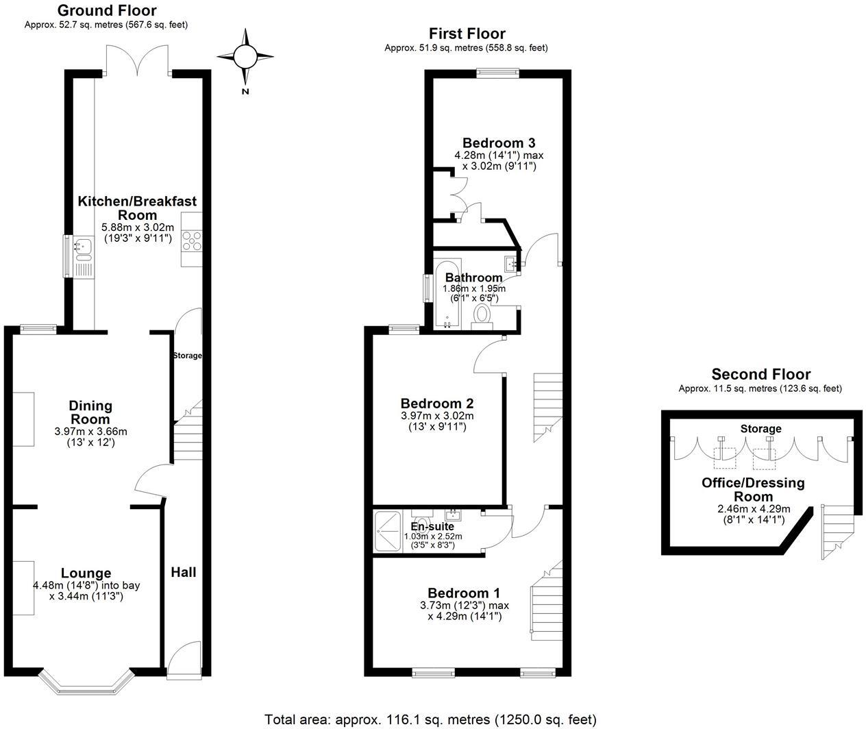
A well-maintained Victorian mid-terrace offering traditional character combined with contemporary living, ideal for growing families. The house features a bright open-plan living and dining area, a modern kitchen with range cooker and French doors to a private rear garden – a practical layout for day-to-day family life and entertaining.
The main bedroom includes an en-suite and there is an additional loft conversion currently used as a light home office, adding flexible space for study or storage. Period details such as exposed brick fireplaces, bay window and exposed beams give the home genuine character while modern upgrades like fast broadband and gas central heating support modern family needs.
Practical considerations are straightforward: the property is leasehold with 877 years remaining, double glazing is present though install date is unknown, and the solid brick walls are assumed to have no added insulation. The forecourt offers low-maintenance kerb appeal but only limited off-street parking.
Set in sought-after Grappenhall near schools, shops and the Bridgewater canal, this comfortable suburbia location combines leafy surroundings with excellent transport links and very low crime, making it an attractive family choice. Energy efficiency and insulation upgrades could be considered to improve long-term running costs.
2 bedroom terraced house for sale in Chester Road, Grappenhall, WA4 — £325,000 • 2 bed • 1 bath • 819 ft²
3 bedroom semi-detached house for sale in Knutsford Road, Grappenhall, WA4 — £325,000 • 3 bed • 1 bath • 1194 ft²
3 bedroom detached house for sale in Mottram Close, Grappenhall, Warrington, WA4 — £320,000 • 3 bed • 2 bath • 774 ft²
3 bedroom detached house for sale in Chester Road, Grappenhall, Warrington, WA4 — £550,000 • 3 bed • 1 bath • 1175 ft²
3 bedroom semi-detached house for sale in Mayfield Road, Grappenhall WA4 — £350,000 • 3 bed • 1 bath • 1081 ft²
3 bedroom semi-detached house for sale in Windsor Drive, Grappenhall, Warrington, WA4 — £375,000 • 3 bed • 1 bath • 1345 ft²


































































