Ready‑to‑build gated estate with barn and paddocks, ideal for a bespoke rural home.
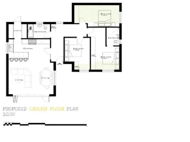
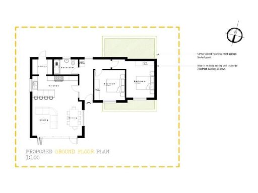
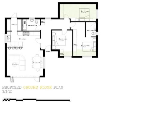
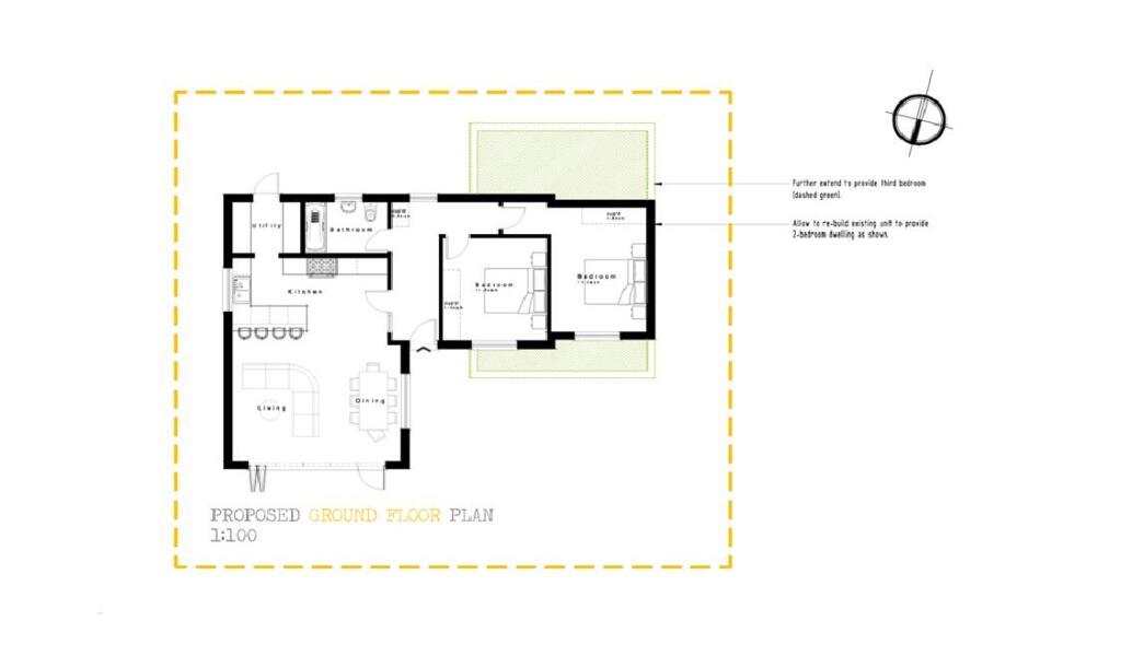
Full planning permission for a three‑bed bungalow (Ref: 24/00465/FUL)
Set within approximately 3.45 acres of paddocks and mature woodland, this secluded gated plot at the end of a private lane offers immediate scope for a bespoke single‑storey home. Full planning permission (Ref: 24/00465/FUL) has been granted for a three‑bedroom detached bungalow, allowing a buyer to start construction without delay. Existing outbuildings — a large barn and stable block — add storage and equestrian potential from day one.
The land is private on all aspects, with open fields, wrap‑around woodland and gentle river views noted in the description. Parking is generous, with capacity for around 20 vehicles via a double width gated entrance, making the site well suited to large families, hobby farmers or those wanting space for vehicles, trailers and equipment. The plot is offered freehold and chain free.
Buyers should be clear this is primarily a land and development opportunity: the approved bungalow is a self‑build/project proposal and completion will require build costs, detailed contractor quotes and statutory discharges. Broadband speeds are reported as slow and mobile signal average — practical considerations for day‑to‑day working from home. There are no reported flood risks and no active TPOs on the woodland.
This property will suit purchasers seeking a countryside lifestyle within reach of transport links — Hockley Station is approximately one mile away with direct services to London — or investors/developers wanting a ready‑to‑implement permission on a substantial private plot. Interested parties are advised to carry out full due diligence on costs, services and any additional consents prior to exchange.
Land for sale in Cavendish Road, Hockley, SS5 — £650,000 • 1 bed • 1 bath • 2763 ft²
3 bedroom detached bungalow for sale in **PLANNING PERMISTION PASSED** Cavendish Road, Hockley, SS5 — £650,000 • 3 bed • 2 bath • 1518 ft²
3 bedroom detached bungalow for sale in New Park Road, Hockley, SS5 — £550,000 • 3 bed • 2 bath
3 bedroom bungalow for sale in Elm Road, Basildon, SS13 — £500,000 • 3 bed • 1 bath • 8050 ft²
Land for sale in Horseman Side, Brentwood, CM14 — £850,000 • 1 bed • 1 bath
3 bedroom detached bungalow for sale in Beckney Avenue, Hockley, SS5 — £900,000 • 3 bed • 2 bath • 1627 ft²






































































































