Self-build opportunity with planning, stables and parking in a secluded riverside setting.
- Approximately 3.45 acres of mixed paddock and mature woodland
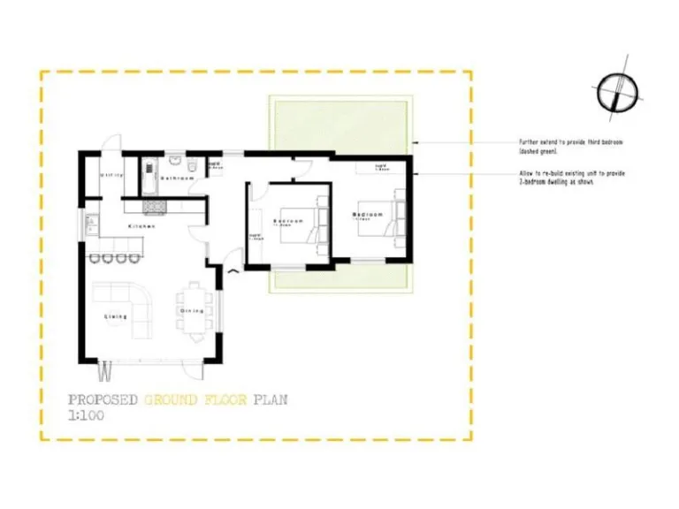
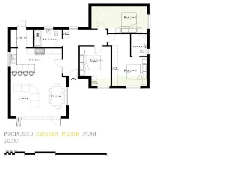
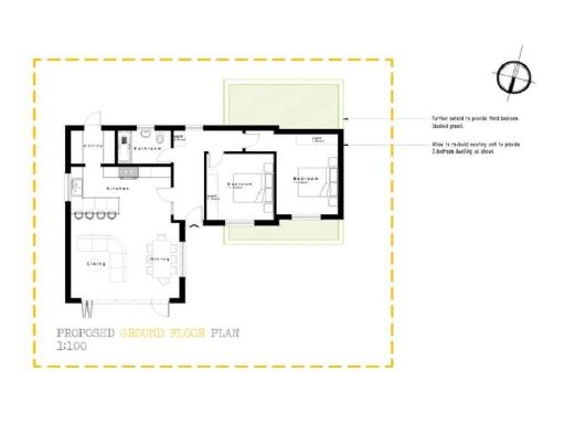
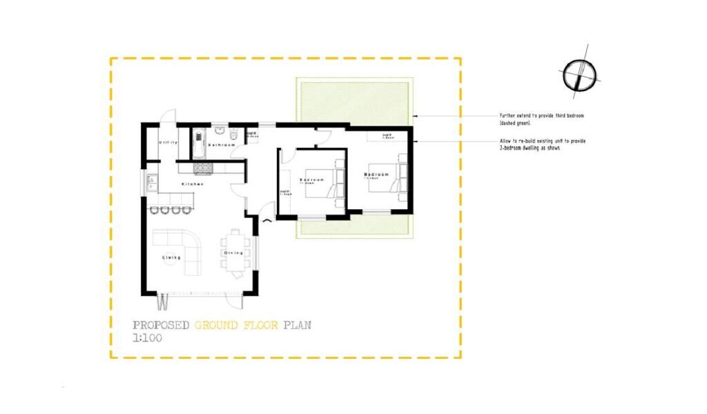
- Full planning consent granted for a three‑bed bungalow (Ref 24/00465/FUL)
- Barn and stable block with space for an open barn area
- Gated entrance, private lane; parking for around 20 vehicles
- No through road access; strong privacy and wooded wraparound
- Broadband speeds reported slow; buyers to confirm utilities
- No active TPOs noted; due diligence on surveys advised
Set at the end of a secluded, gated lane, this substantial 3.45-acre holding combines paddocks, mature woodland and generous hardstanding to create a rare self-build or small-equestrian opportunity close to Hockley. Full planning permission (Ref: 24/00465/FUL) has been granted for a single-storey three-bedroom bungalow, allowing immediate development to buyers who want a bespoke countryside home. Existing outbuildings include a barn and stable block with space for an open barn area, useful for storage, workshop or equine use.
The site offers strong privacy on all aspects and practical on-site capacity — parking for around 20 vehicles and established gated access — while remaining within easy reach of local amenities and Hockley station (approximately one mile). The woodland wraparound and varied landscaping create a tranquil backdrop with river views from parts of the land, making the plot attractive for hobby farming, equestrian pursuits or a family self-build seeking seclusion.
Buyers should note practical considerations: broadband speeds are reported as slow, and any costs for services, build works, fees and ongoing maintenance will vary depending on buyer circumstances. There are no active TPOs on the woodland, but purchasers must carry out their own due diligence on surveys, connections and statutory searches. The property is offered chain free, with planning consent in place for immediate progress.
3 bedroom bungalow for sale in Cavendish Road, Hockley, SS5 — £650,000 • 3 bed • 1 bath • 2763 ft²
3 bedroom detached bungalow for sale in **PLANNING PERMISTION PASSED** Cavendish Road, Hockley, SS5 — £650,000 • 3 bed • 2 bath • 1518 ft²
3 bedroom detached bungalow for sale in New Park Road, Hockley, SS5 — £550,000 • 3 bed • 2 bath
4 bedroom detached house for sale in St. Peters Road, Hockley, SS5 — £1,150,000 • 4 bed • 2 bath • 1731 ft²
Land for sale in Horseman Side, Brentwood, CM14 — £850,000 • 1 bed • 1 bath
3 bedroom bungalow for sale in Elm Road, Basildon, SS13 — £500,000 • 3 bed • 1 bath • 8050 ft²






































































































