HX2 6UY - 6 bed high house barn estate in Midgley, Luddendenfoot, HX2…

View on Property Piper

6 bedroom detached house for sale in High House Lane, Midgley, Luddendenfoot, Halifax, HX2

Summary - High House Barn, Midgley, Luddendenfoot HX2 6UY

6 bed 3 bath Detached

Spacious converted barn with outbuildings, pool and paddocks for family small‑holding.
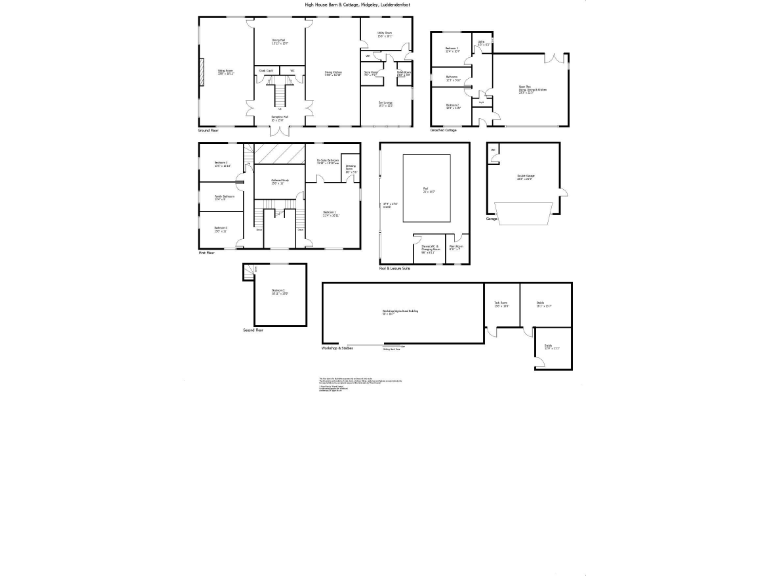
- Main barn conversion: 4 bedrooms, high ceilings, generous reception rooms
- Separate 2-bed cottage/annexe completed to a high standard
- Heated pool and leisure suite with changing and shower facilities
- 50ft workshop/agricultural building, plus double garage and gardener's WC
- Stables, tack room and fenced paddocks; approx. 7.25 acres total
- Mixed heating systems: mains gas (main house) and oil (cottage/pool)
- Very slow broadband and average mobile signal — limited for remote work
- Main house Council Tax Band G; higher running and maintenance costs
Set on about 7.25 acres above Midgley, High House Barn is a substantial converted stone barn with sweeping valley views and a rare mix of family accommodation and outbuildings. The principal barn is a four‑bedroom conversion with high ceilings and generous reception rooms; a recently completed two‑bed cottage/annexe offers independent living or rental potential. A detached pool and leisure suite, double garage with gardener’s WC, and a 50ft workshop/agricultural building make this a versatile small‑holding with immediate usable space.

The estate is laid out around a courtyard with two stables, tack room and fenced paddocks suitable for equestrian or hobby farming. Parking and turning areas are plentiful and gated driveway access gives good privacy. Heating is mixed: the main house runs on mains gas (boiler and radiators), while the cottage and pool complex use oil-fired systems. Energy ratings are respectable (main house 71, cottage 74, both Band C).

This property will suit buyers who value rural privacy, equestrian or small‑holding potential, and generous living and ancillary space. Note practical drawbacks: the site is fairly remote with very slow broadband and average mobile signal, which may affect home working; multiple heating systems mean varied servicing needs and running costs; council tax on the main house is high (Band G). Some areas will benefit from ongoing maintenance or updating to match modern efficiencies and preferences.

Overall, High House Barn offers a distinctive country lifestyle with immediate, flexible buildings and land, strong development potential for a growing family or small‑scale agricultural use, and panoramic countryside views that are hard to find at this scale.

Property Details

Brochure Descriptions

Image Descriptions

Textual Property Features

Target Audience

AI Tags

Detected Visual Features

EPC Details

Nearby Schools

Nearest Bars And Restaurants

,,,,}

Nearest General Shops

,,}

Nearest Grocery shops

,,}

Nearest Supermarkets

,,}

Nearest Religious buildings

,,}

Nearest Medical buildings

,,,}

Nearest Airports

}

Nearest Leisure Facilities

,,,,}

Nearest Tourist attractions

,,}

Nearest Train stations

,,,,}

Nearest Bus stations and stops

,,,,}

Nearest Hotels

,,}

Tags

Local Market Stats

AirBnB Data

Similar Properties

Meta

High Res Images

Compatible Images

Low res Images

Thumbnails

Raw Images

High Res Floorplan Images

Compatible Floorplan Images

Low res Floorplan Images

FloorplanImages Thumbnail

Raw Floorplan Images