Chain-free property with garage, garden and strong commuter links to nearby trunk roads.
Chain free five-bedroom detached house
Three bedrooms with en-suite plus two further doubles
Approximately 1,711 sq ft across three floors
Double-length garage and off-street parking
Enclosed rear garden with decked patio area
EPC C (75); factor in energy costs
Council Tax Band E; above-average local charge
Excellent transport links to A11 and A14
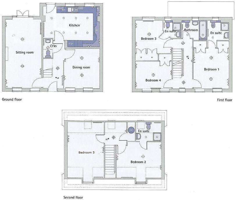
Set within a quiet Red Lodge cul-de-sac, this chain-free five-bedroom detached house offers practical family accommodation across three floors. The ground floor has a living room with patio doors to the enclosed rear garden, a separate dining room and a fitted kitchen with integrated appliances. A double-length garage and off-street parking provide useful storage and vehicle space.
Three bedrooms feature en‑suite bathrooms and there are two further good-sized double bedrooms, giving flexible sleeping arrangements for families, home working or guests. The property measures about 1,711 sq ft and was built in the early 2000s, so construction is modern and maintenance needs are modest. There is a lawned front and rear garden with a decked patio area for outdoor living.
Practical considerations: the EPC is rated C (75) and the Council Tax is Band E, which should be factored into running costs. The house is freehold with no chain and sits in a very low-crime, affluent neighbourhood with fast broadband and excellent mobile signal. Commuters benefit from direct links to the A11 and A14.
Local amenities include several good primary schools, playgrounds and leisure facilities close by, making the location well suited to families seeking space, convenience and straightforward modern living. The layout and three en‑suites give strong scope for multi-generational use or high occupant privacy.
5 bedroom detached house for sale in Acorn Way, Red Lodge, IP28 — £410,000 • 5 bed • 4 bath • 1625 ft²
4 bedroom detached house for sale in Rosehip Avenue, Red Lodge, IP28 — £399,000 • 4 bed • 2 bath • 1506 ft²
4 bedroom detached house for sale in Harebell Road, Red Lodge, IP28 — £400,000 • 4 bed • 2 bath • 1626 ft²
3 bedroom detached house for sale in Juniper Road, Red Lodge, IP28 — £285,000 • 3 bed • 2 bath • 894 ft²
4 bedroom semi-detached house for sale in Thyme Close, Red Lodge, Bury St Edmunds, IP28 — £290,000 • 4 bed • 2 bath • 1249 ft²
5 bedroom detached house for sale in Bilberry Close, Red Lodge, BURY ST. EDMUNDS, IP28 — £475,000 • 5 bed • 4 bath • 2130 ft²


















































































