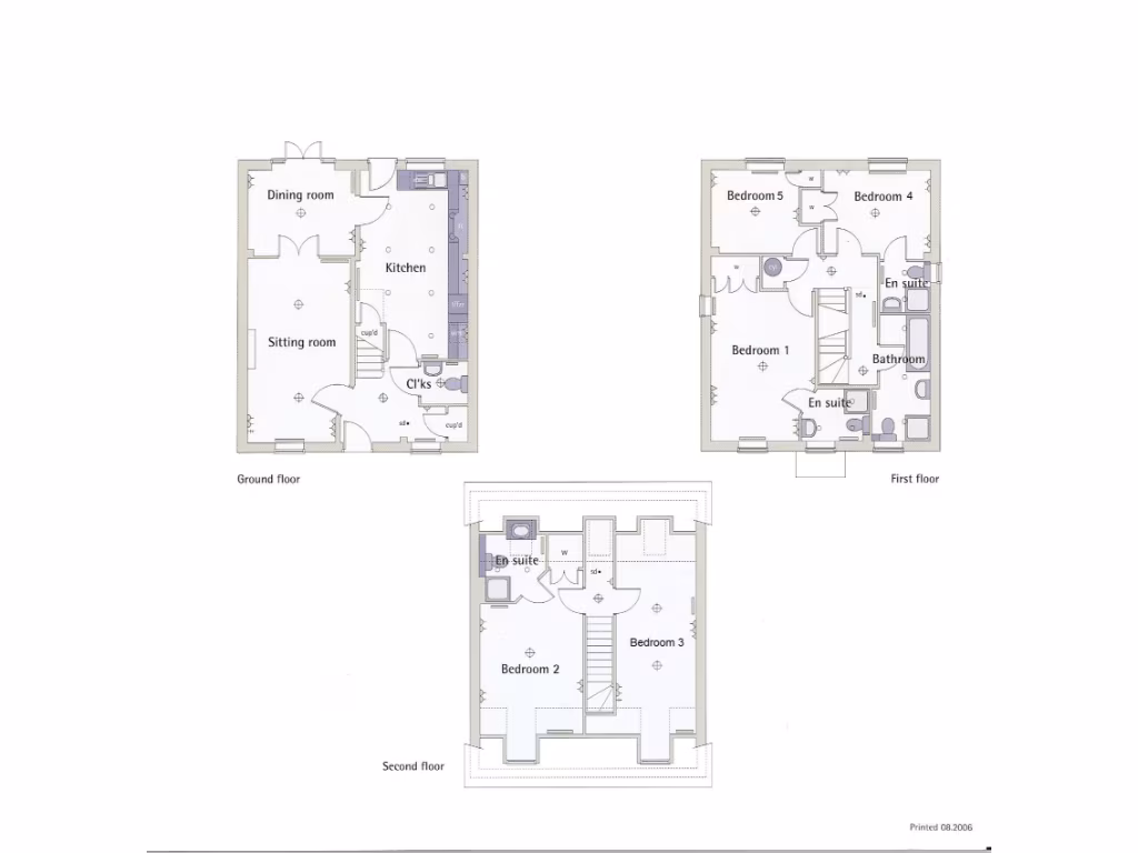
Chain free five-bedroom house with garage, en-suites and a generous enclosed garden.
Chain free five-bedroom detached property with double-length garage
Three double bedrooms each with en-suite plus two further bedrooms
Kitchen with integrated appliances; separate dining room and living room
Generous enclosed rear garden with patio; decent suburban plot size
Built c.2003–2006 with double glazing and mains gas central heating
EPC around 75; fast broadband and low local crime
Good transport links to A11 and A14; convenient for commuters
Council tax band E — above-average annual costs; three-storey layout involves stairs
Set over three floors, this chain-free detached house on Acorn Way offers five bedrooms (three doubles with en-suites), a generous enclosed rear garden and off-road parking with a double-length garage. The 1,625 sq ft footprint gives clear family living: separate dining room, a well-fitted kitchen with integrated appliances and a living room that opens onto the garden patio. Built c.2003–2006, the property benefits from double glazing, mains gas central heating and an EPC around C (approx. 75).
The accommodation suits growing families who need space for home-working and storage — three en-suite bedrooms reduce morning congestion and the sizeable third-floor bedroom could serve as a guest suite or study. The plot is a decent suburban size and is enclosed and level, making it child- and pet-friendly. Fast broadband, low local crime and good links to the A11/A14 add practical appeal for commuters.
Buyers should note material running costs: the property sits in West Suffolk council tax band E, which is above average for the area. The three-storey layout requires use of stairs and may be less convenient for mobility-restricted occupants. The home is presented as a modern suburban build; while generally well appointed, buyers seeking period character or single-floor living should consider these factors.
5 bedroom detached house for sale in Bilberry Close, Red Lodge, IP28 — £447,500 • 5 bed • 4 bath • 1711 ft²
4 bedroom detached house for sale in Rosehip Avenue, Red Lodge, IP28 — £399,000 • 4 bed • 2 bath • 1506 ft²
3 bedroom town house for sale in Acorn Way, Red Lodge, IP28 — £280,000 • 3 bed • 1 bath • 1228 ft²
4 bedroom detached house for sale in Acorn Way, Red Lodge, IP28 — £400,000 • 4 bed • 3 bath • 1195 ft²
5 bedroom detached house for sale in Sycamore Drive, Bury St. Edmunds, IP32 — £430,000 • 5 bed • 3 bath • 1863 ft²
4 bedroom detached house for sale in Harebell Road, Red Lodge, IP28 — £390,000 • 4 bed • 2 bath • 1626 ft²






























































































