Chain-free three-bed with garden, garage and easy A11/A14 access.
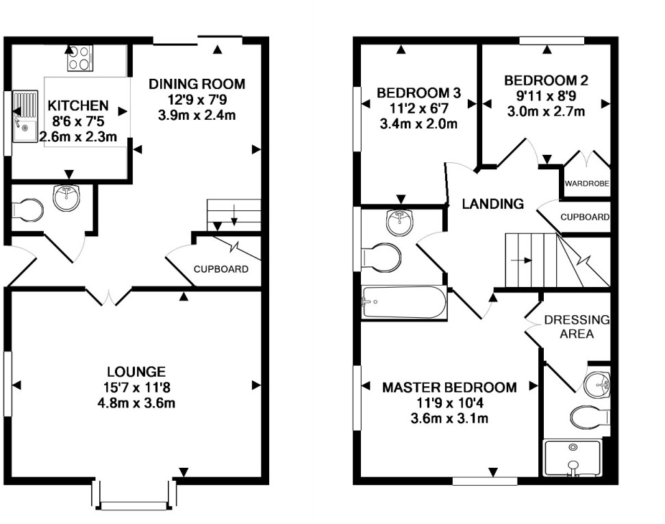
Chain-free three-bedroom detached house on corner plot
Chain-free and neatly presented, this three-bedroom detached home on Juniper Road sits on a decent corner plot in Red Lodge. The ground floor offers an open-plan living/dining/kitchen arrangement with patio doors to the garden, while the first-floor main bedroom includes an en-suite. Off-road parking and a single garage add practical space for families.
Finished to a standard modern specification (gas central heating, double glazing), the house was built in the early 2000s and will suit buyers seeking a straightforward, low-risk purchase in a very low-crime, affluent neighbourhood. Transport links to the A11 and A14 are convenient for commuting and regional travel. Local primary and secondary schools are nearby, and the area is popular with multi-ethnic professionals and families.
The property is average in overall size (approx 894 sq ft) and offers good rental or first-home potential. There are no obvious structural or flood risks reported, but some cosmetic updates (kitchen, flooring or décor) could add personal style and value. Double glazing is present though the installation date is unknown; buyers should confirm the age of key services and consider a routine survey.
This house will appeal to first-time buyers or small families wanting a ready-to-live-in home with scope to modernise incrementally. The combination of a private rear garden, garage, off-street parking and a freehold, chain-free sale creates practical appeal and a smooth transaction route.
3 bedroom semi-detached house for sale in Hollyhock Court, Red Lodge, IP28 — £275,000 • 3 bed • 2 bath • 882 ft²
4 bedroom detached house for sale in Rosehip Avenue, Red Lodge, IP28 — £399,000 • 4 bed • 2 bath • 1506 ft²
4 bedroom detached house for sale in Harebell Road, Red Lodge, IP28 — £400,000 • 4 bed • 2 bath • 1626 ft²
4 bedroom semi-detached house for sale in Thyme Close, Red Lodge, Bury St Edmunds, IP28 — £290,000 • 4 bed • 2 bath • 1249 ft²
3 bedroom town house for sale in Acorn Way, Red Lodge, IP28 — £280,000 • 3 bed • 1 bath • 1228 ft²
3 bedroom semi-detached house for sale in Aster Close, Red Lodge, IP28 — £240,000 • 3 bed • 2 bath • 806 ft²


































































