Large garden, modern kitchen and versatile four/five bedroom layout for growing families.
Short walk to Swanpool Beach and Nature Reserve
This extended end-of-terrace house offers generous family living in a convenient Falmouth location, a short walk from Swanpool Beach and Nature Reserve. The heart of the home is a spectacular circa 25' open-plan reception with bi-fold doors to a composite deck, a modern integrated kitchen with island and marble worktops, plus an adjoining utility room and separate dining/bedroom five for flexible use.
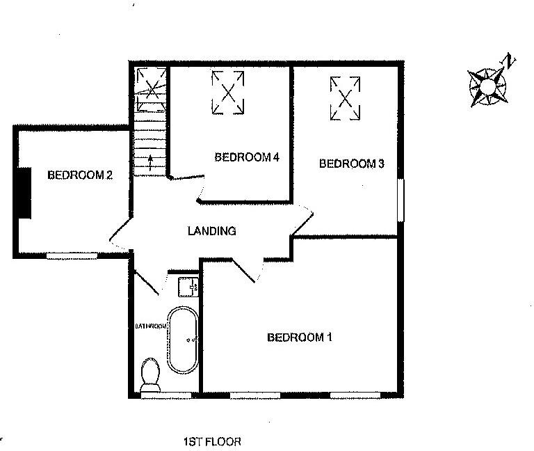
Accommodation is arranged across two floors with four good double bedrooms and an impressive first-floor family bathroom with a freestanding bath, complemented by a ground-floor shower room. Practical features include UPVC double glazing and mains gas central heating; the property reads as a contemporary, family-friendly home with plenty of light and storage.
Outside there is a substantial rear garden with raised decking, lower lawns and a dropped kerb giving vehicular access and informal parking. The sizeable plot gives scope for future building or alteration (subject to planning) and will appeal to families who value outdoor space close to town amenities, schools and transport links.
Notable points for purchasers: previous planning to build on the lower garden/parking area was refused, the external walls are presumed cavity construction without added insulation, and the current owners typically park on the street. The garden will need routine maintenance and any development would require new planning consents.
4 bedroom semi-detached house for sale in Boslowick Road, Falmouth, TR11 — £395,000 • 4 bed • 2 bath • 998 ft²
4 bedroom detached house for sale in Penmere Drive, Falmouth, TR11 — £725,000 • 4 bed • 2 bath • 1485 ft²
4 bedroom detached house for sale in Falmouth, TR11 — £575,000 • 4 bed • 3 bath • 1672 ft²
5 bedroom detached house for sale in Falmouth, TR11 — £715,000 • 5 bed • 2 bath • 1118 ft²
3 bedroom end of terrace house for sale in Trenoweth Road, Falmouth, TR11 — £340,000 • 3 bed • 2 bath • 1061 ft²
4 bedroom semi-detached house for sale in King Charles Street, Falmouth, TR11 — £435,000 • 4 bed • 2 bath • 1073 ft²


























































































