**Standout Features:**
- Full planning permission for a four-bedroom detached family home (TWC/2024/0829)
- Prime location in Madeley, Telford, with a quiet residential setting
- Excellent amenities nearby, including well-regarded schools and leisure facilities
- Decent-sized plot with off-road parking and a private garden
- Fast broadband and excellent mobile signal for modern living
- Future potential for customization and expansion
**Notable Concerns:**
- Crime rate is above average in the area
- Local area characterized as deprived
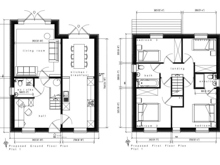
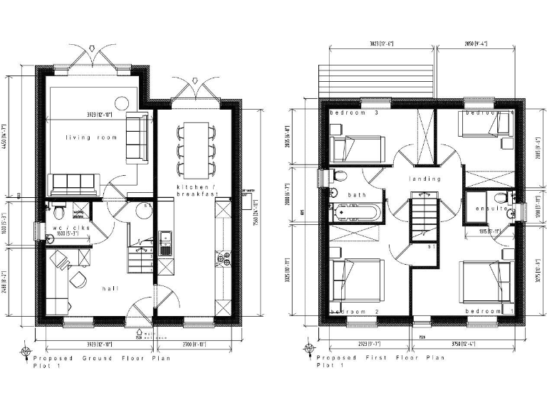
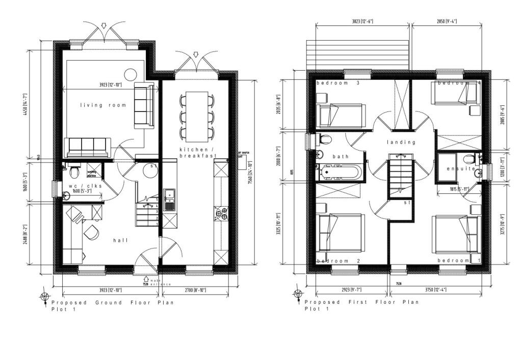
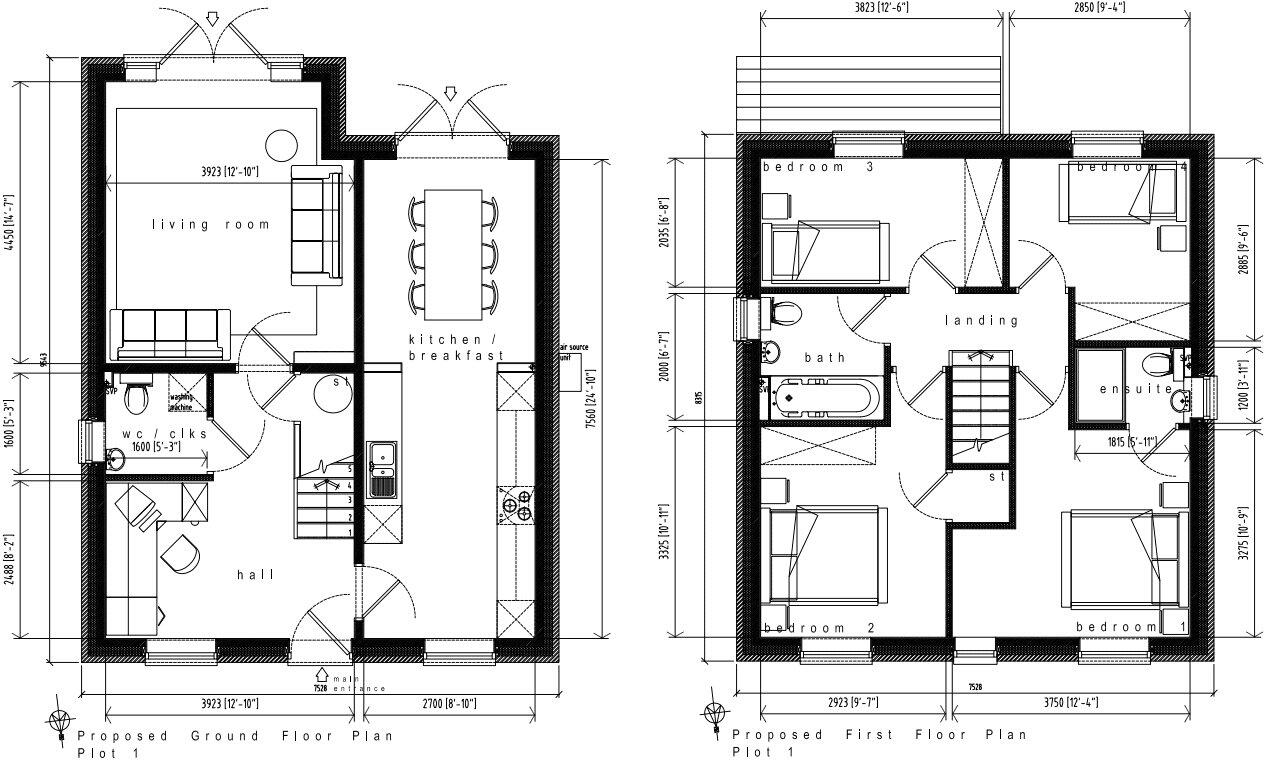
This is a unique opportunity to secure a generously sized building plot in the established area of Madeley, Telford, complete with full planning permission for a modern four-bedroom detached family home. The thoughtfully designed layout promises to offer a welcoming entrance, ample living space, and four well-sized bedrooms, including an en-suite master bedroom. With off-street parking and a private garden, this plot is perfectly tailored for families seeking comfort and convenience.
Residents benefit from a serene location with easy access to local schools, shops, and leisure amenities, all while being within close proximity to Telford town center and major transport links. While the area faces some challenges, such as a higher crime rate and socioeconomic deprivation, the potential for a solid investment or self-build project remains strong. With the opportunity to create your ideal family home, don’t miss out on this ready-to-go development—explore the possibilities today!
Land for sale in Chapel Lane, Broseley, TF12 — £200,000 • 1 bed • 1 bath
Land for sale in Cape Street, Broseley, TF12 — £135,000 • 1 bed • 1 bath • 1538 ft²
Plot for sale in Dale Road, Coalbrookdale, Telford, Shropshire, TF8 — £240,000 • 1 bed • 1 bath • 2388 ft²
Detached house for sale in Sycamore Road, Broseley, TF12 — £135,000 • 1 bed • 1 bath
Land for sale in Cape Street, Broseley, TF12 — £135,000 • 1 bed • 1 bath • 1538 ft²
Plot for sale in East Road, Ketley Bank, Telford, Shropshire, TF2 — £200,000 • 1 bed • 1 bath


















