TF8 7DT - 1 bed ready to build plot in Telford, TF8 7DT

View on Property Piper

Plot for sale in Dale Road, Coalbrookdale, Telford, Shropshire, TF8

Summary - BROOK HOUSE, DALE ROAD TF8 7DT

1 bed 1 bath Plot

Cleared, consented building plot near Ironbridge — start work without delay..
Planning permission granted (TWC/2021/1200) with conditions discharged
Ground investigation, foundation design and demolition completed
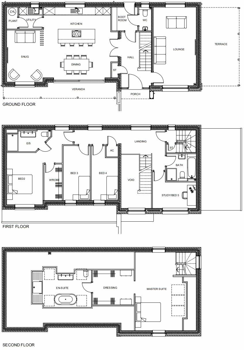
Site area approx. 0.33 acres; GIA c.2,388 sq ft over three storeys
Woodland backdrop within site ownership and stream to the front
Foul and storm drainage connection points present on site
High flood-risk location — require mitigation and may affect insurance
Very slow broadband; local area shows signs of deprivation
Walking distance to Ironbridge amenities and transport links
This substantial 0.33-acre plot on Dale Road comes with full planning permission (TWC/2021/1200) and practical preparatory work already completed, so construction can begin without delay. Ground investigation, foundation design and demolition have been carried out, and all pre-commencement planning conditions are discharged. Foul and storm drainage connection points are on site; a working drawing pack is available separately.

The approved scheme delivers approximately 2,388 sq ft across three storeys with garage parking and garden, set in a quiet conservation-area position with woodland to the rear and a stream to the front. The site is within easy walking distance of Ironbridge’s shops, eateries and heritage attractions, while Telford town centre and the M54 are about eight miles away.

Notable constraints are factual: the plot falls within a high flood-risk area and broadband speeds are very slow. The local area shows indicators of deprivation and some nearby schools are rated below “Good” by Ofsted, which may affect certain buyer groups or mortgage conditions. Prospective purchasers should satisfy themselves on flood mitigation requirements and any insurance or lender conditions before exchange.

This opportunity suits a self-builder, developer or investor who wants a near-immediate start on a high-profile Ironbridge-edge site with strong planning provenance. The combination of cleared technical work and a sought-after historic location offers time and cost savings, balanced against necessary flood-risk management and local infrastructure limits.

Property Details

Brochure Descriptions

Image Descriptions

Floorplan Description

Rooms

Textual Property Features

Target Audience

AI Tags

Detected Visual Features

Nearby Schools

Nearest Bars And Restaurants

,,,,}

Nearest General Shops

,,}

Nearest Grocery shops

,,}

Nearest Supermarkets

,,}

Nearest Religious buildings

,,}

Nearest Medical buildings

,,,}

Nearest Leisure Facilities

,,,,}

Nearest Tourist attractions

,,}

Nearest Train stations

,,,,}

Nearest Bus stations and stops

,,,,}

Nearest Hotels

,,}

Tags

Local Market Stats

AirBnB Data

Similar Properties

Meta

High Res Images

Compatible Images

Low res Images

Thumbnails

Raw Images

High Res Floorplan Images

Compatible Floorplan Images

Low res Floorplan Images

FloorplanImages Thumbnail

Raw Floorplan Images