**Property Highlights:**
- Large plot size: 451 sqm (approx. 1538 sqft)
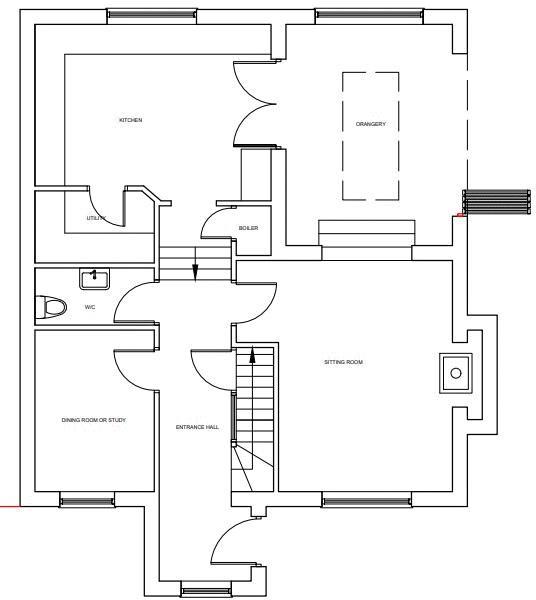
- Planning consent granted for a modern detached property
- Located in Broseley, close to local amenities and schools
- Excellent mobile signal and fast broadband speeds
- Freehold tenure, providing long-term ownership
- Private garden area with potential for landscaping
- Overgrown garden offers a unique fixer-upper opportunity
Seize this exceptional opportunity to own a substantial building plot in Broseley, where planning consent has already been granted for the construction of a modern detached home. With a generous plot size of approximately 451 sqm, this freehold land allows you to design your dream dwelling while benefiting from an established access road and utilities already in place.
Nestled within a friendly, suburban environment, you'll have easy access to essential amenities, quality schooling, and picturesque countryside views. Ideal for families and first-time buyers, this spacious lot is merely a short drive from historic Ironbridge and less than 15 minutes from national transport links.
Additionally, potential buyers can consider acquiring neighboring plots to negotiate a better price. The overgrown garden presents an opportunity for landscaping enthusiasts or those seeking a fixer-upper experience. This sought-after location, coupled with the opportunity to build a bespoke home, makes this property a rare find in today’s market. Don't miss your chance to create a legacy in a community that balances rural charm with modern conveniences!
Land for sale in Cape Street, Broseley, TF12 — £135,000 • 1 bed • 1 bath • 1538 ft²
Detached house for sale in Sycamore Road, Broseley, TF12 — £135,000 • 1 bed • 1 bath
Land for sale in Chapel Lane, Broseley, TF12 — £200,000 • 1 bed • 1 bath
Plot for sale in Dark Lane, Broseley, Shropshire, TF12 — £500,000 • 1 bed • 1 bath
Land for sale in Coronation Cottage, 57a King Street, Broseley, TF12 — £150,000 • 1 bed • 1 bath • 1506 ft²
Plot for sale in Dale Road, Coalbrookdale, Telford, Shropshire, TF8 — £240,000 • 1 bed • 1 bath • 2388 ft²


















































