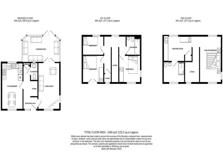
**Highlight Features:**
- Spacious 4-bedroom semi-detached townhouse built in 2013
- Generous master bedroom with dressing area and en-suite
- Large conservatory and modern kitchen with integrated appliances
- Garage and secure parking at the rear
- Garden equipped with solar lighting and outdoor power supply
- Chain-free sale with furnishings available for negotiation
- Excellent energy rating (B) with double glazing and gas central heating
- Nearby reputable schools including outstanding-rated options
This inviting and contemporary three-story semi-detached townhouse offers an ideal blend of comfort and modern living for growing families. Spanning approximately 1,270 square feet, the layout includes three well-proportioned bedrooms, a spacious master suite, and a family bathroom on the first floor. The ground floor boasts a welcoming entrance hall, a comfortable living area, and a large conservatory that seamlessly extends your living space, perfect for entertaining or family gatherings.
Situated in a friendly neighborhood with quick access to local amenities and reputable schools, this property caters to both convenience and family life. The secure garage and private driveway ensure ample parking, while the meticulously landscaped garden provides a tranquil space for outdoor enjoyment. With no upper chain, you can settle in quickly and enjoy this well-maintained home. Don't miss your chance to make this exclusive property yours; schedule a viewing today!
4 bedroom town house for sale in Southwold Crescent, Broughton, MK10 — £440,000 • 4 bed • 2 bath • 1251 ft²
4 bedroom semi-detached house for sale in Andania Lane, Brooklands, MK10 — £500,000 • 4 bed • 3 bath • 1324 ft²
3 bedroom semi-detached house for sale in Poppy Avenue, Broughton, Milton Keynes, MK10 — £450,000 • 3 bed • 2 bath • 1284 ft²
4 bedroom end of terrace house for sale in Clifton Moor, Oakhill, Milton Keynes, Buckinghamshire, MK5 — £385,000 • 4 bed • 2 bath • 1105 ft²
4 bedroom detached house for sale in Farjeon Court, Old Farm Park, MK7 — £700,000 • 4 bed • 2 bath • 1744 ft²
4 bedroom semi-detached house for sale in Bewdley Grove, Broughton, MK10 — £485,000 • 4 bed • 4 bath • 1583 ft²










































































































































