**Standout Features:**
- 3-bedroom mid-terraced house in a sought-after town center location
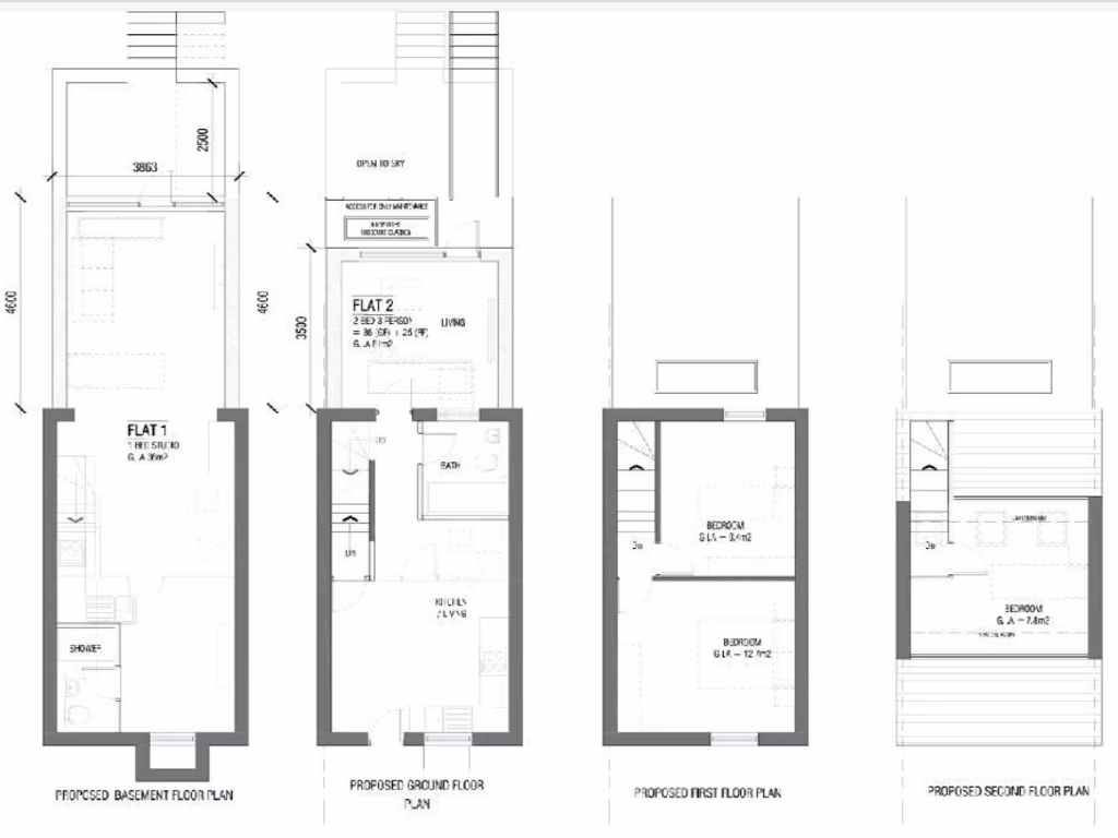
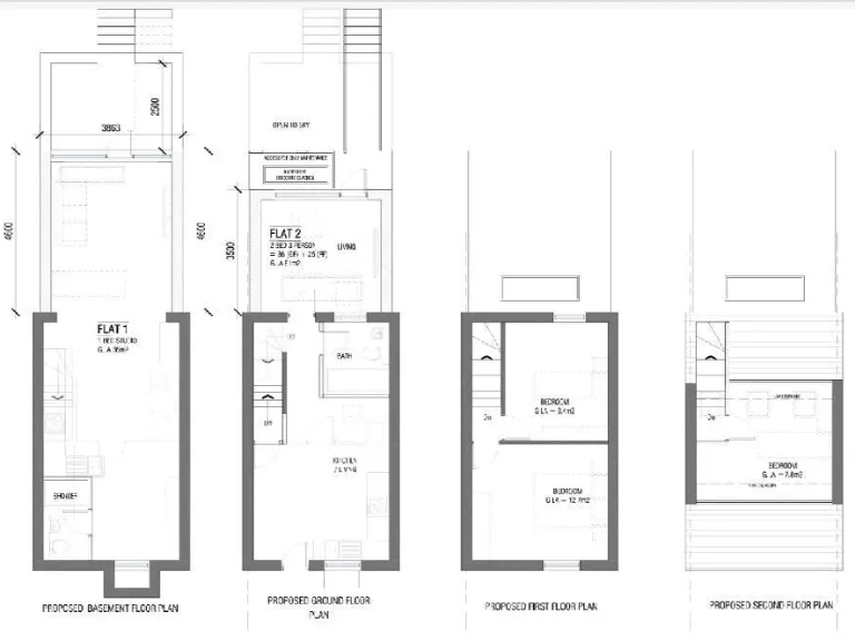
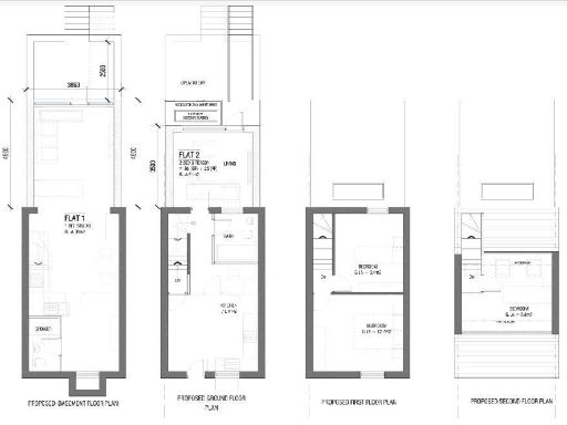
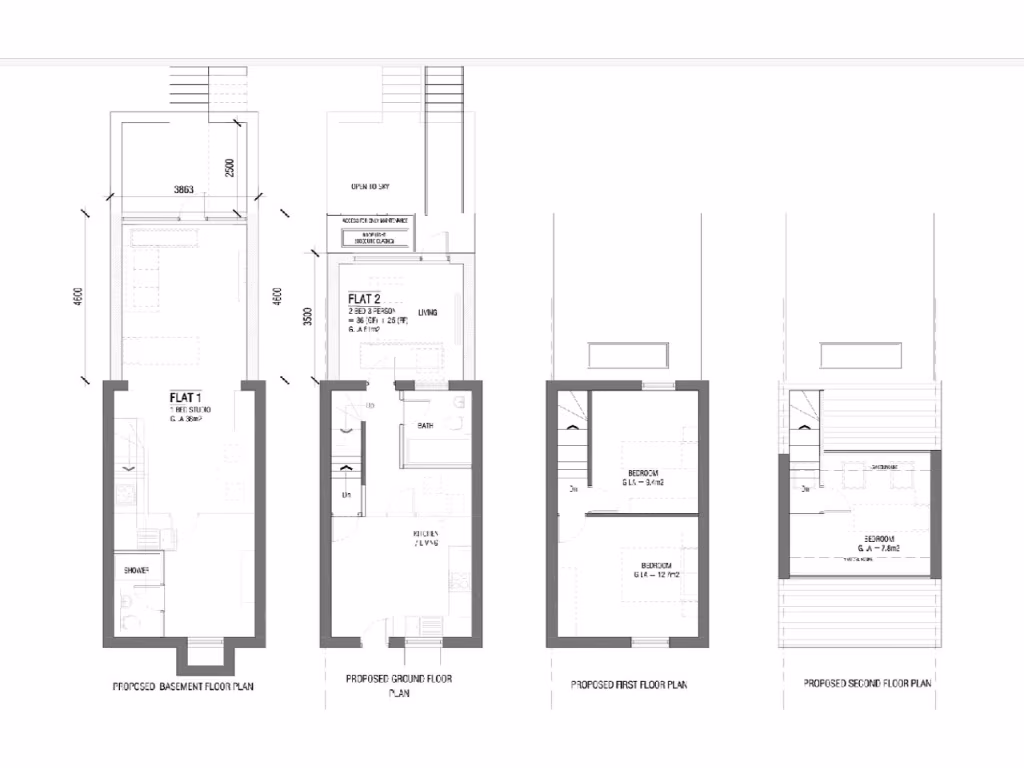
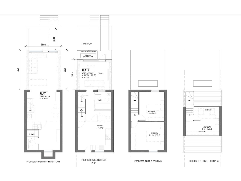
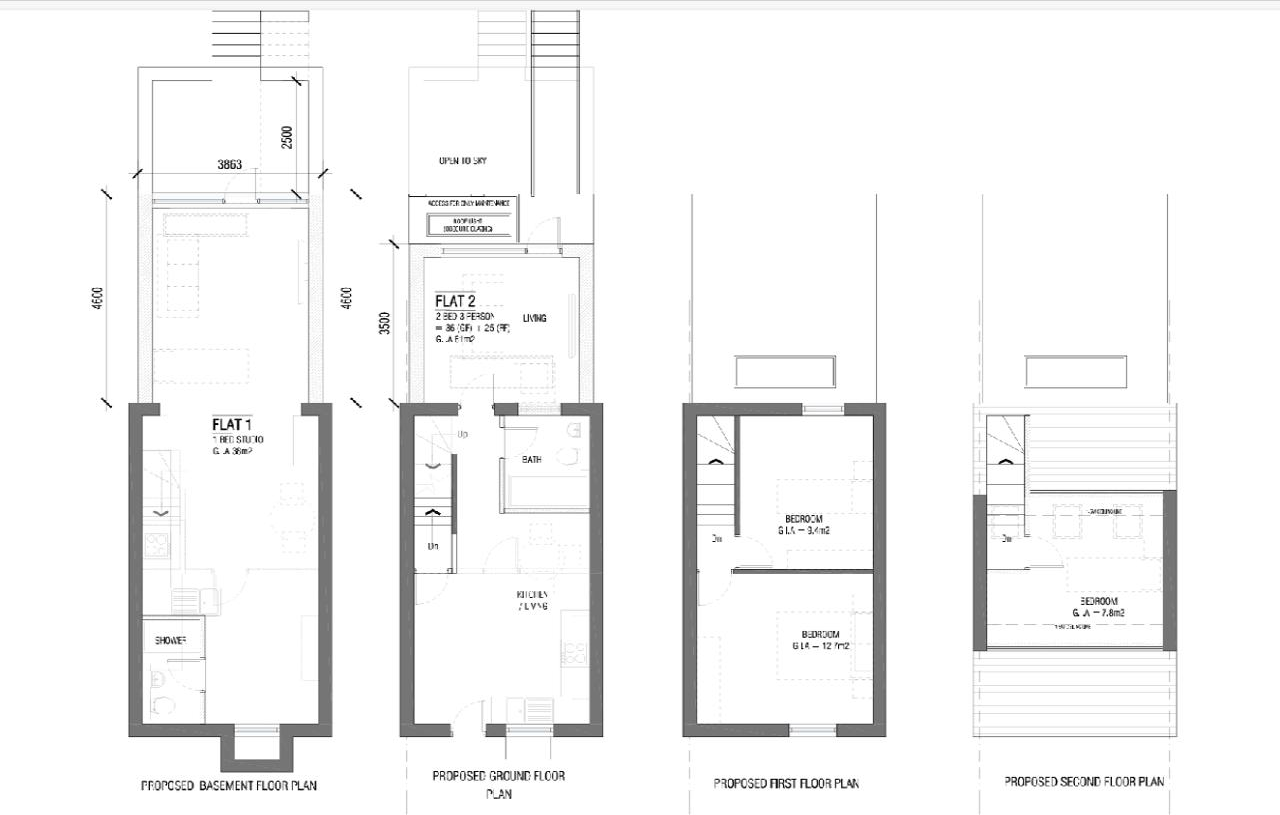
- Full approved planning permission for conversion into 2 maisonettes (reference 24/00917FUL)
- Gated parking for 2 cars with rear access
- Potential for a high rental yield, ideal for investors
- Basement room and private rear garden for future tenants
- Close to excellent local schools and transport links
This spacious 3-bedroom terraced house on Wellington Street offers a fantastic investment opportunity in the heart of Luton. With full planning permission already secured to convert the property into two separate maisonettes, this home is ideal for savvy investors looking to capitalize on the booming rental market. The proposed plans include a self-contained one-bedroom studio in the basement and a generous three-bedroom maisonette across the first and second floors.
Currently in need of renovation, the property features a lounge, kitchen, and a sizeable bathroom, making it a blank canvas for your vision. The current layout includes comfortable living spaces, double glazing, and solid brick construction, while the rear garden provides an additional outdoor space.
Given its prime location with easy access to excellent schools, shopping, and transport links—including Luton Airport—this property merges convenience with significant potential. The area has a vibrant community atmosphere, appealing to young families and professionals alike. Don't miss this unique opportunity to secure a promising long-term investment; early viewing is highly recommended!
Land for sale in Wellington Street, Luton, Bedfordshire, LU1 5AH, LU1 — £290,000 • 1 bed • 1 bath • 549 ft²
3 bedroom end of terrace house for sale in Stanley Street, Luton, Beds, LU1 5AL, LU1 — £265,000 • 3 bed • 1 bath • 840 ft²
2 bedroom end of terrace house for sale in Russell Street, Luton, Bedfordshire, LU1 5EB, LU1 — £235,000 • 2 bed • 1 bath • 739 ft²
5 bedroom terraced house for sale in Inkerman Street, LUTON, Bedfordshire, LU1 — £300,000 • 5 bed • 2 bath • 1214 ft²
5 bedroom terraced house for sale in Cambridge Street, Luton, Bedfordshire, LU1 3QU, LU1 — £300,000 • 5 bed • 1 bath • 877 ft²
1 bedroom maisonette for sale in Wellington Street, Luton, LU1 — £90,000 • 1 bed • 1 bath • 409 ft²






























