Freehold commercial asset — flexible Class E space with yard and parking, close to Fishersgate station..
Detached Class E building ~3,939 sqft (366 sqm) footprint; flexible commercial uses allowed
Secure fenced yard approx. 125 sqm (1,345 sqft) with Hurst Crescent access
Off-street parking and small forecourt for loading/visitor parking
Excellent public transport links: Fishersgate ~400m, Portslade <1km
Freehold sale; offers invited in the region of £550,000
Ratable value £40,500 (2023) — business rates payable by occupier
Area has above-average crime and very high deprivation — security concerns
Limited internal information available; EPC to be confirmed; survey recommended
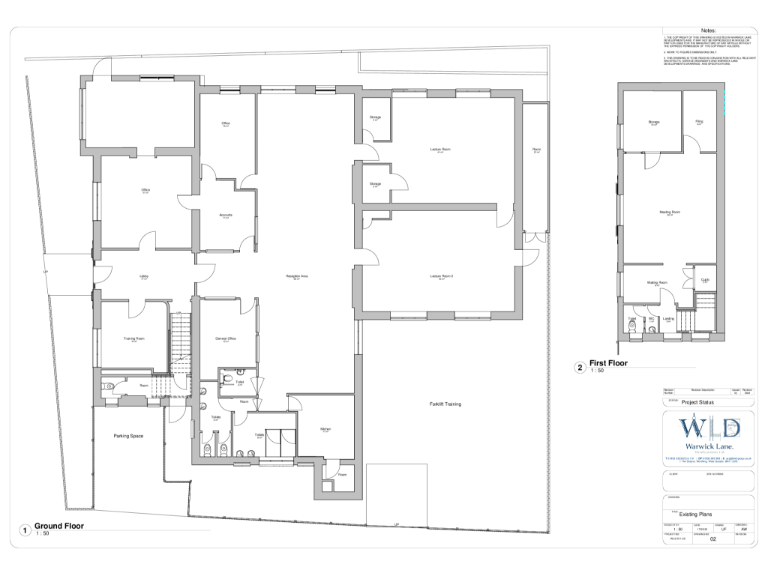
This substantial detached two-storey Class E building offers a large freehold footprint (circa 3,939 sqft / 366 sqm) arranged over ground and first floors, currently fitted out as offices and a training facility. The site includes a secure side/rear yard of approximately 125 sq m (1,345 sq ft), a small forecourt and an off-street parking space, providing useful servicing, storage and vehicle access from Hurst Crescent.
Well connected for staff and customers, Fishersgate station is about 400 metres away and Portslade station under 1 km, with the A270 Old Shoreham Road immediately to the north for east–west road links. The building’s Class E status gives flexibility for a range of commercial uses (retail, office, studio, light industrial uses within Class E), making it suited to investors or occupiers seeking an adaptable urban site.
Important considerations are that the property sits in an area with above-average crime and very high local deprivation; this will affect tenant profile, security requirements and potentially rental values. The brochure provides limited visual and internal information and the EPC is to be confirmed, so buyers should arrange an internal inspection, full particulars and a measured survey. Ratable Value (2023) is £40,500, which will influence business rates liabilities. Offers are invited in the region of £550,000 (freehold).
Commercial property for sale in 26 Abinger Road, Portslade, Brighton, East Sussex, BN41 — £750,000 • 1 bed • 1 bath • 3939 ft²
Commercial property for sale in Crown Works, Crown Road, Portslade, BN41 — £325,000 • 1 bed • 1 bath • 2700 ft²
Light industrial facility for sale in Ellen Street Estate, Portslade, Brighton BN41 1DW, BN41 — £3,000,000 • 1 bed • 1 bath
Commercial development for sale in 18 Wellington Road, Portslade, Brighton & Hove, BN41 1DN, BN41 — £125,000 • 1 bed • 1 bath • 1608 ft²
Office for sale in 50A Livingstone Road, Hove BN3 3WL, BN3 — £425,000 • 1 bed • 1 bath • 1430 ft²
Commercial property for sale in Upper Brighton Road, Sompting, Lancing, BN15 — £120,000 • 1 bed • 1 bath • 477 ft²






























