Ready income with clear rent-uplift and refurbishment potential for investors.
- Freehold mixed-use: five 1-bed flats plus commercial unit
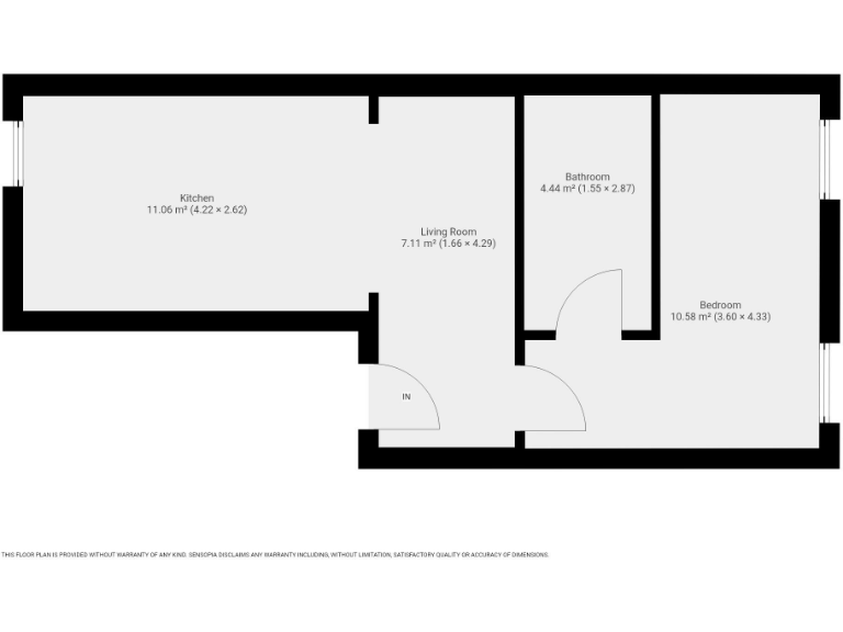
This freehold, mixed-use building on Prescot Road provides a ready-made income stream: five one-bedroom flats plus a single commercial unit, all currently let and producing approximately £39,000pa. The property sits in a well-connected L7 location with strong rental demand from nearby amenities, transport links and local universities. Long leases (999 years) are already in place for the flats, offering straightforward options for continued portfolio rental or individual sale.
Constructed circa early 20th century, the building presents character features including high ceilings at street level and solid brick construction. Core condition is described as good, but the building offers clear upside: current residential rents are below market, creating scope for income uplift. The commercial unit is let at £700pcm and could be re-assessed on renewal to improve yield.
Buyers should note material negatives honestly: the area records very high crime and very high deprivation, which affects tenant mix, resale and management risk. Heating is by electric room heaters and mains is electricity, and walls are likely uninsulated solid brick—so energy performance and tenant heating costs may be poor. Council tax is very cheap, but broadband and mobile connectivity are strong.
This is best suited to an investor or small-portfolio buyer seeking immediate cashflow with refurbishment or active management potential. Consider budgeting for energy-efficiency improvements, targeted repair works and professional asset management to lift rents and reduce long-term void risk.
5 bedroom house for sale in Rufford Road, Liverpool, Merseyside, L6 — £340,000 • 5 bed • 1 bath • 559 ft²
4 bedroom block of apartments for sale in County Road, Liverpool, L4 — £450,000 • 4 bed • 4 bath • 4774 ft²
5 bedroom semi-detached house for sale in Balmoral Road, Fairfield, Liverpool, Merseyside, L6 — £340,000 • 5 bed • 1 bath • 510 ft²
High street retail property for sale in Priory Road, Anfield, Liverpool, Merseyside, L4 2RZ, L4 — £120,000 • 1 bed • 1 bath
4 bedroom semi-detached house for sale in Flats 1-4, 12 Lister Road, Liverpool, L7 — £275,000 • 4 bed • 1 bath
4 bedroom block of apartments for sale in Goodison Road, Liverpool, Merseyside, L4 — £220,000 • 4 bed • 4 bath • 355 ft²


























































































