L7 0HF - 4 bedroom semidetached house for sale in Flats 14, 12 Liste…

View on Property Piper

4 bedroom semi-detached house for sale in Flats 1-4, 12 Lister Road, Liverpool, L7

Summary - Flat 4, 12 Lister Road, LIVERPOOL L7 0HF

4 bed 1 bath Semi-Detached

Freehold four-flat investment with garden and parking, sold by auction—lot for active investors.
Freehold four-flat investment producing £34,380 pa income
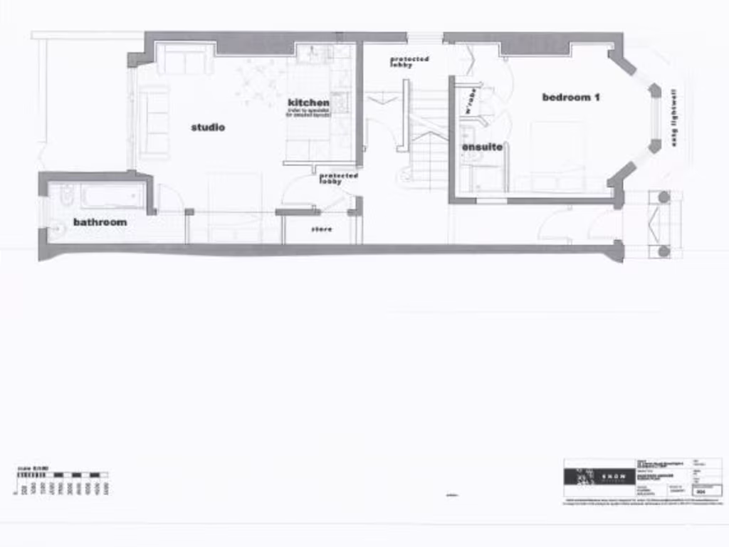
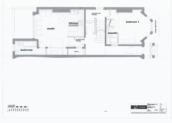
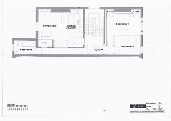
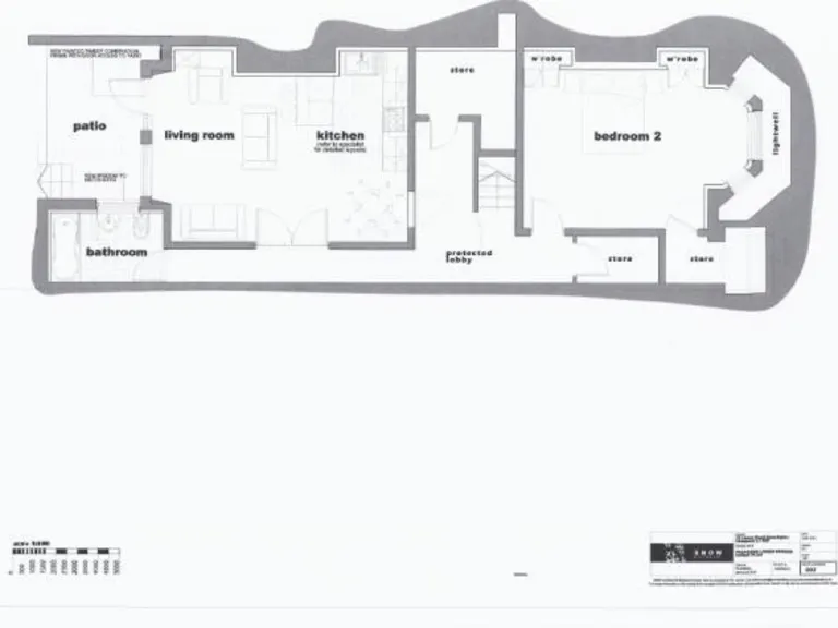
A substantial Victorian semi-detached building converted into four self-contained flats, offered freehold and producing a current rental income of £34,380 per year. The block includes a studio, two 2-bed flats and a larger 3-bed maisonette with en-suite, plus private rear garden and off-street parking. Strong transport links, proximity to the city centre and nearby universities support continuous rental demand.

The property will be sold at public auction, so buyers should be prepared for the auction timetable and legal pack checks. EPCs are mixed across the flats (C, D and E), indicating some units will need energy improvements. The building shows period character—bay windows, high ceilings and original stair—yet parts require modernization and landscaping of the side driveway and garden.

This lot suits investors or a developer comfortable with an active management or refurbishment programme: potential to uplift income and capital value by improving EPC ratings, modernising kitchens/bathrooms and reconfiguring communal areas. Note the local context: the area is very deprived with very high crime rates, which affects long-term capital growth prospects and lettability to higher-end tenants.

Practical positives include fast broadband, excellent mobile signal and low flood risk. Prospective purchasers should review tenancy agreements, service and maintenance history, and planned or outstanding compliance works before bidding.

Property Details

Image Descriptions

Textual Property Features

Target Audience

AI Tags

Detected Visual Features

Nearby Schools

Nearest Bars And Restaurants

,,,,}

Nearest General Shops

,,}

Nearest Grocery shops

,,}

Nearest Supermarkets

,,}

Nearest Religious buildings

,,}

Nearest Medical buildings

,,,}

Nearest Airports

}

Nearest Leisure Facilities

,,,,}

Nearest Tourist attractions

,,}

Nearest Train stations

,,,,}

Nearest Bus stations and stops

,,,,}

Nearest Hotels

,,}

Tags

Local Market Stats

AirBnB Data

Similar Properties

Meta

High Res Images

Compatible Images

Low res Images

Thumbnails

Raw Images