Chain-free 3-bedroom home with large garden and driveway — ideal to modernise..
Chain-free freehold three-bedroom end-terrace on large plot
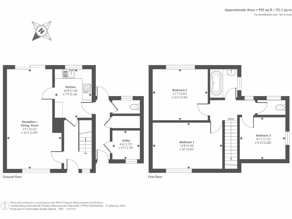
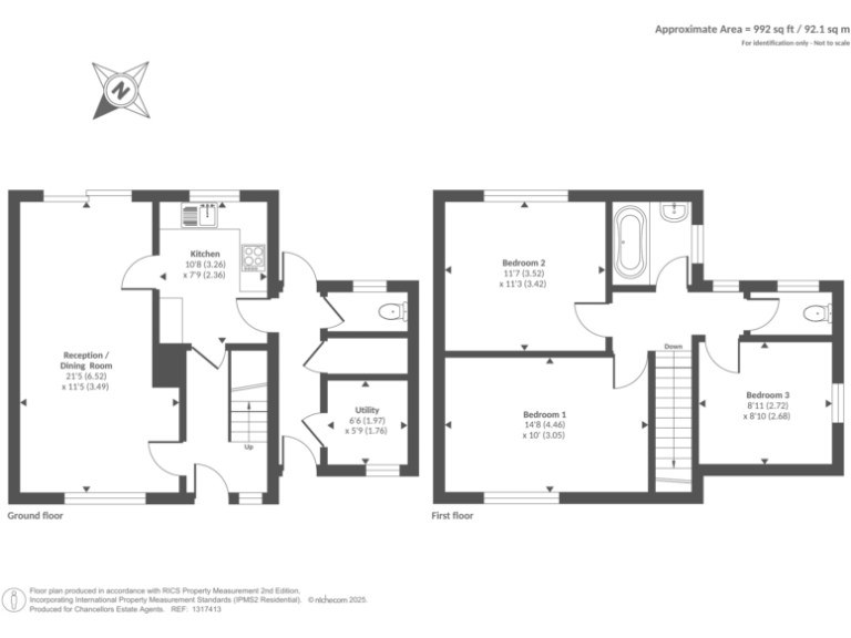
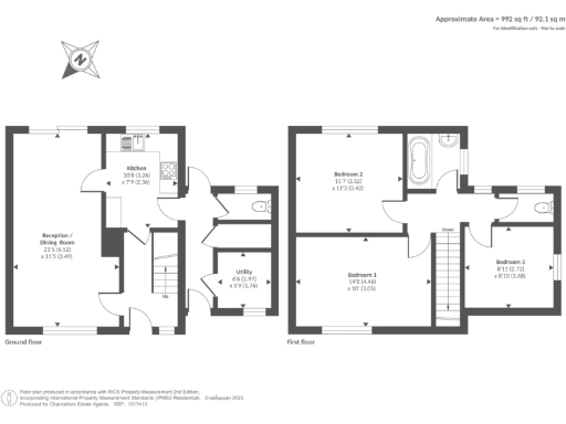
This three-bedroom end-of-terrace home in Marston is offered chain-free and ready for a family seeking space near good schools and the John Radcliffe hospital. The house sits on a large plot with a generous rear garden, driveway parking and a separate utility room — practical for busy households. The living/dining room is dual-aspect and light, and bedrooms are well proportioned for a property of its age.
The property dates from the mid-20th century and will suit buyers looking to modernise rather than move into a finished home. The exterior and garden are currently unkempt and will need attention; the cavity walls are assumed to have no additional insulation and the double glazing installation date is unknown. There is one bathroom, so growing families should allow for potential reconfiguration or extension if needed.
Highlights include no onward chain, freehold tenure, off-street parking and fast broadband with excellent mobile signal — practical for commuters and home working. Overall this house offers solid bones and realistic scope for improvement, making it a good option for a family wanting to add value through renovation.
3 bedroom semi-detached house for sale in Marston, Oxford, OX3 — £400,000 • 3 bed • 1 bath • 739 ft²
3 bedroom semi-detached house for sale in Marston, Oxford, OX3 — £675,000 • 3 bed • 1 bath • 964 ft²
3 bedroom terraced house for sale in Rippington Drive, Oxford, OX3 — £450,000 • 3 bed • 1 bath • 725 ft²
5 bedroom semi-detached house for sale in Marston, Oxford, OX3 — £700,000 • 5 bed • 1 bath • 1442 ft²
3 bedroom semi-detached house for sale in Marston, Oxford, OX3 — £550,000 • 3 bed • 1 bath • 1167 ft²
3 bedroom semi-detached house for sale in Marston, Oxford, OX3 — £450,000 • 3 bed • 1 bath • 764 ft²






































































