Spacious plot, strong schools, and extension potential (STPP).
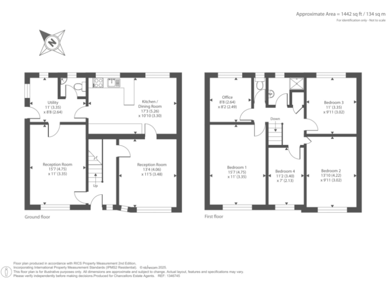
Five bedrooms across two floors, versatile family layout
Set at the end of a quiet cul-de-sac in Marston, this five-bedroom semi-detached home offers generous bedroom capacity and practical living space for a growing family. Sold with no onward chain and a garage plus off-street parking, it’s ready for a buyer seeking an adaptable, well-located property.
The house dates from the late 1960s/early 1970s and retains many original features, so it will suit purchasers prepared to modernise. There is clear potential to extend (STPP) to increase living space and reconfigure layouts, while a utility room and downstairs WC add day-to-day convenience.
Notable positives include good local schools, excellent mobile signal and fast broadband, low local crime and easy access to community amenities and transport links. Practical considerations: the property is relatively small for five bedrooms, has a single bathroom, older double glazing and cavity walls likely without modern insulation, so improvement works will be needed to bring energy performance and comfort up to current standards.
This home will appeal to families who prioritise location and space to adapt, or investors and developers interested in a renovation/extension project in a very affluent, well-served part of Oxford.
3 bedroom detached house for sale in Purcell Road, Marston, OX3 — £565,000 • 3 bed • 1 bath • 926 ft²
3 bedroom semi-detached house for sale in Marston, Oxford, OX3 — £400,000 • 3 bed • 1 bath • 739 ft²
4 bedroom semi-detached house for sale in Marston, Oxford, OX3 — £600,000 • 4 bed • 3 bath • 1525 ft²
3 bedroom semi-detached house for sale in Marston, Oxford, OX3 — £675,000 • 3 bed • 1 bath • 964 ft²
3 bedroom semi-detached house for sale in Mill Lane, Marston, OX3 — £650,000 • 3 bed • 2 bath • 1674 ft²
3 bedroom semi-detached house for sale in Ouseley Close, Marston, OX3 — £535,000 • 3 bed • 1 bath • 765 ft²






























































