Compact family home with private garden and excellent local schools, sold chain-free..
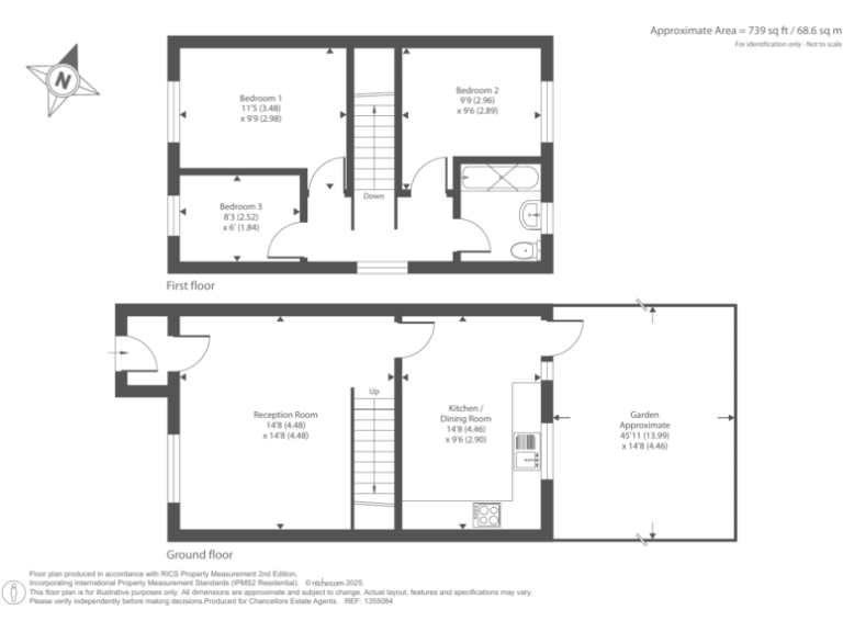
Three bedrooms and one family bathroom
Set on a quiet no-through road in Marston, this three-bedroom semi-detached house is offered chain-free and ready for a new owner to personalise. The living room and kitchen/dining layout suit family life, while a private rear garden with side access provides outdoor space for children or gardening. A single family bathroom serves the three bedrooms on the first floor.
The house is compact at about 739 sq ft and dates from the early 1990s with timber-frame construction and double glazing. Interiors are dated and will benefit from refurbishment—cosmetic updating, replacement of aged fittings and decoration are likely. The garden and garage both need maintenance and attention.
Location is a clear strength: very affluent, low-crime neighbourhood popular with highly qualified professionals and families, with several well-rated primary and secondary schools within easy reach. Fast broadband, mains gas heating with boiler and radiators, and no flood risk make this a practical everyday home. For buyers seeking a modest family home in a strong local area, this offers good potential; for those wanting a turnkey property, expect renovation work and ongoing maintenance costs.
3 bedroom semi-detached house for sale in Marston, Oxford, OX3 — £675,000 • 3 bed • 1 bath • 964 ft²
5 bedroom semi-detached house for sale in Marston, Oxford, OX3 — £700,000 • 5 bed • 1 bath • 1442 ft²
3 bedroom semi-detached house for sale in Hayes Close, Marston, Oxford, OX3 — £445,000 • 3 bed • 1 bath • 742 ft²
3 bedroom semi-detached house for sale in Marston, Oxford, OX3 — £450,000 • 3 bed • 1 bath • 764 ft²
3 bedroom semi-detached house for sale in Oxford Road, Marston, Oxford, OX3 — £525,000 • 3 bed • 1 bath • 793 ft²
3 bedroom semi-detached house for sale in Marston, Oxford, OX3 — £550,000 • 3 bed • 1 bath • 1213 ft²














































































