Ready-to-move-in two-bed home with low-maintenance garden and off-street parking..
Newly renovated two-bedroom end terrace, move-in ready
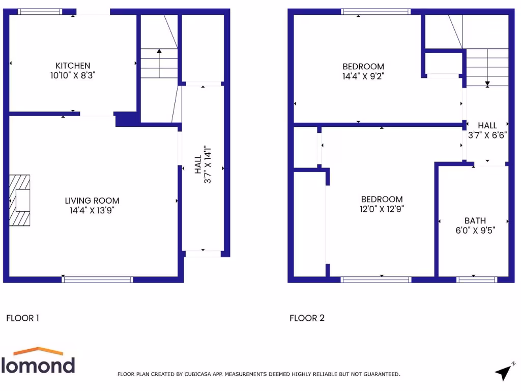
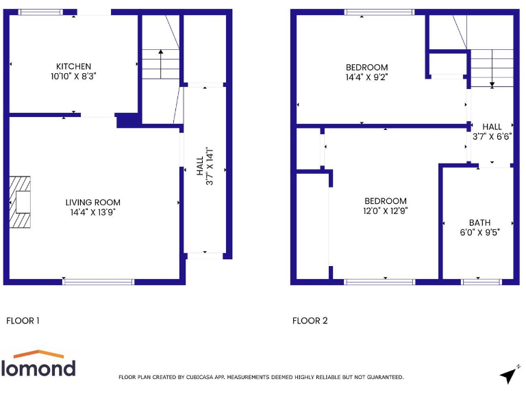
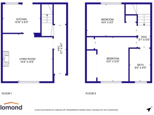
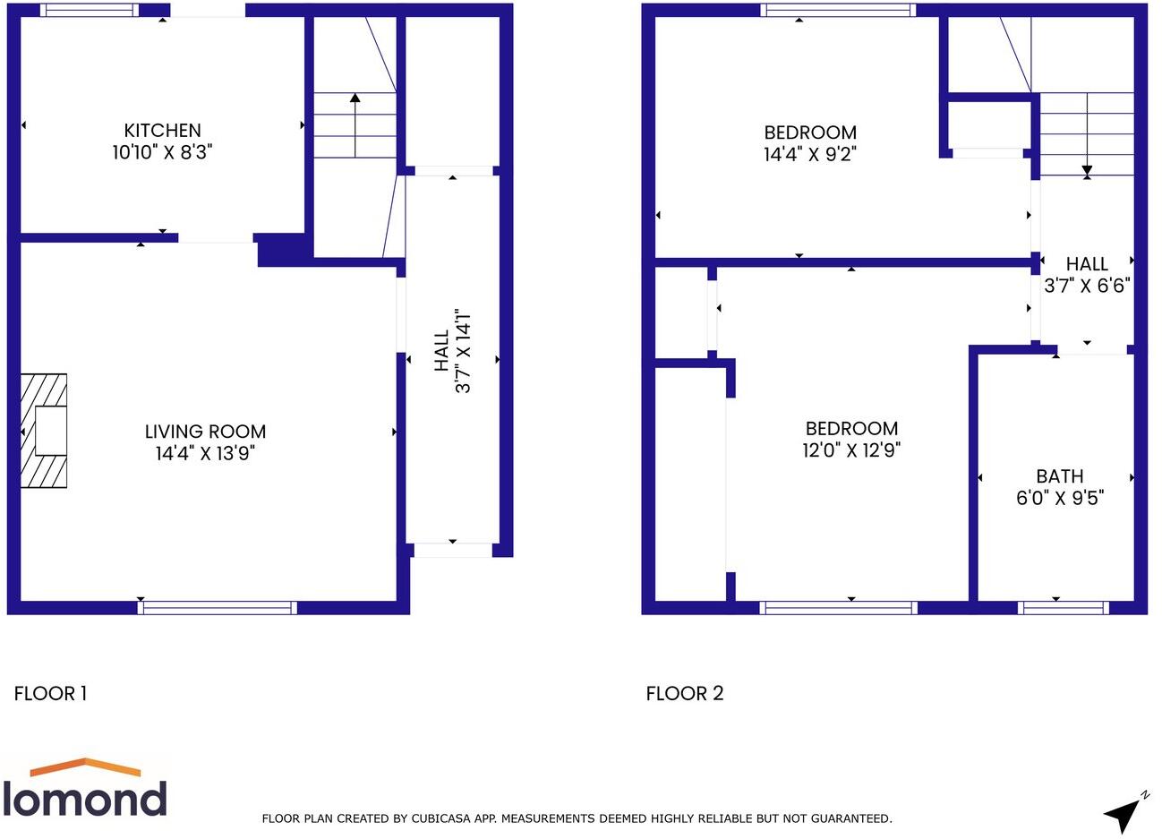
Set on a quiet Mayfield Avenue pocket of Hurlford, this newly renovated two-bedroom end terrace is move-in ready and comfortably sized (approx. 701 sq ft). The house benefits from a modern kitchen with integrated appliances, a contemporary bathroom, and a low-maintenance rear garden with artificial lawn, raised deck and storage shed. Off-street parking on the neat monoblock driveway and an open outlook to the front add everyday convenience and a sense of space.
Internally the layout is straightforward and practical for first-time buyers, couples or small families: two well-proportioned bedrooms, a bright lounge and a compact, glossy kitchen with stone worktops. The property is freehold, has fast broadband, average mobile signal and a very low council tax band — useful cost-savers for a new household.
Buyers should note the wider context: the area is classified as very deprived with hard-pressed rented terraces and local social challenges. While the home itself is modernised and low-maintenance, prospective purchasers should judge the neighbourhood and long-term local investment prospects for themselves. There are no known flooding risks.
A closing date is set for Thursday 18th September 2025 at 12 noon. Early viewing is recommended to appreciate the ready-to-live-in condition, practical outdoor space and convenient transport links into Kilmarnock.
3 bedroom semi-detached villa for sale in Irvine Road, Kilmarnock, KA1 — £265,000 • 3 bed • 2 bath • 1723 ft²
2 bedroom end of terrace house for sale in Cessnock Avenue, Hurlford, Kilmarnock, KA1 — £79,995 • 2 bed • 1 bath • 620 ft²
2 bedroom end of terrace house for sale in Leven Court, Hurlford, KA1 — £100,000 • 2 bed • 1 bath • 860 ft²
3 bedroom detached villa for sale in Old Rome Drive, Kilmarnock, KA1 — £325,000 • 3 bed • 4 bath • 1535 ft²
3 bedroom semi-detached house for sale in 76 Richardson Avenue, Hurlford, Kilmarnock, KA1 — £99,995 • 3 bed • 1 bath • 849 ft²
2 bedroom end of terrace house for sale in Hareshaw Gardens, Kilmarnock, KA3 — £85,000 • 2 bed • 1 bath • 684 ft²






























































