High-spec, family-ready villa with gym, sauna and south-facing garden.
Newly renovated detached villa with high-spec finishes
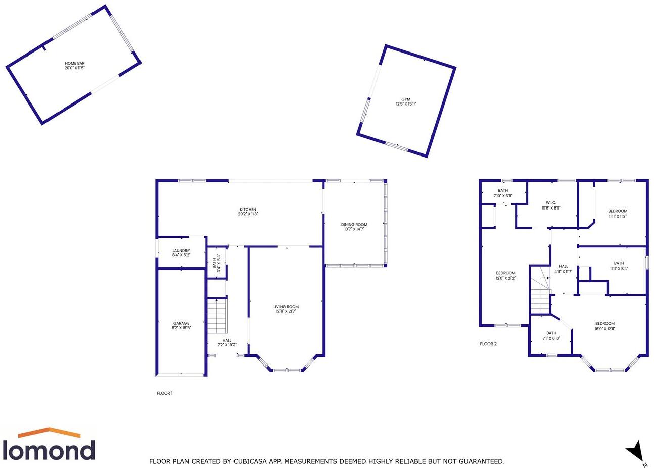
A rare, extensively renovated detached villa in a quiet Moorfield cul-de-sac, this home combines generous space with high-end finishes. The property was reconfigured from four bedrooms to create an expansive master suite with walk-in dressing room, luxurious en-suite and a private front balcony — easily reversible if a fourth bedroom is preferred. The heart of the house is a contemporary open-plan kitchen with island and bi-folding doors opening to a sunlit south-facing patio, complemented by multiple reception rooms including a conservatory.
Outside is designed for entertaining and wellness: a professionally laid resin driveway, integrated garage, meticulously landscaped south-facing garden, custom home bar, and a timber cabin housing a private gym and sauna. Additional outdoor features include a practice golf facility and a workshop. Practical details include freehold tenure, four bathrooms, fast broadband and no flood risk.
Notable considerations: the property sits within an area classified as deprived and the council tax band is described as quite expensive. Mobile signal is average. The home is offered with a set closing date (Tuesday 23rd September 2025 at 12 noon), so interested buyers should plan viewings promptly. Overall, this villa suits buyers wanting move-in-ready, high-spec family living with exceptional outdoor amenities and significant lifestyle appeal.
3 bedroom detached house for sale in Castle Stuart Walk, Kilmarnock, KA1 — £230,000 • 3 bed • 3 bath • 1094 ft²
3 bedroom semi-detached villa for sale in Irvine Road, Kilmarnock, KA1 — £265,000 • 3 bed • 2 bath • 1723 ft²
5 bedroom detached villa for sale in Holmes Village, Kilmarnock, KA1 — £295,000 • 5 bed • 3 bath • 1938 ft²
3 bedroom semi-detached house for sale in Pollock Wynd, Klmaurs, KA3 — £200,000 • 3 bed • 3 bath • 866 ft²
3 bedroom detached house for sale in Loch View, Kilmarnock, KA3 — £185,000 • 3 bed • 3 bath • 724 ft²
4 bedroom detached villa for sale in Muirfield Drive, Kilmarnock, KA1 — £265,000 • 4 bed • 3 bath • 1384 ft²


































































































