Large garden, modern living and three ensuites in a desirable village setting.
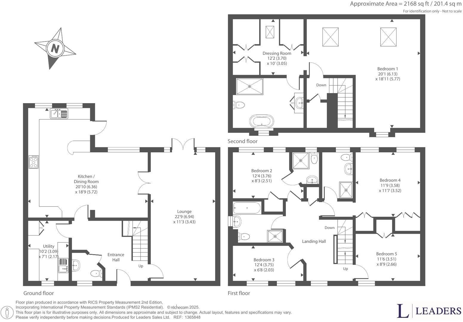
- Five bedrooms across three floors, including top-floor master suite
- Three en-suite bedrooms plus family bathroom and ground-floor WC
- Large open-plan kitchen/dining with integrated appliances and breakfast bar
- South-facing garden, large plot and abundant natural light
- Double garage and off-road parking for multiple vehicles
- Built post-2007 with double glazing; mains gas central heating
- Council tax Band G (quite expensive)
- Timber-frame construction and insulation listed as assumed, verify if required
This spacious five-bedroom detached house sits on a large plot in the popular village of Weston, offering generous family accommodation across three floors. The contemporary open-plan kitchen/dining room forms the social heart of the home, with large windows, integrated appliances and double doors leading to a deep lounge that benefits from a south-facing garden and abundant natural light.
Accommodation includes three en-suite bedrooms plus a top-floor master suite with fitted storage, a ground-floor utility/office room and a downstairs cloakroom — flexible spaces that suit families, multigenerational living or regular guests. Practical extras include a double garage, off-road parking and fast broadband suitable for home working.
The location is family-friendly with several Good-rated primary and secondary schools nearby, very low local crime and an affluent, rural feel. Built post-2007 with double glazing fitted since 2002 and mains gas central heating, the house is generally modern in specification.
Notable points to consider: council tax is in a high band (G), and some structural details (timber frame, insulation) are stated as assumed rather than certified. Mobile signal is average. Buyers who prioritise low tax costs or need confirmed construction reports should verify these items prior to offer.
6 bedroom house for sale in St. Augustines Drive, Weston, Crewe, CW2 — £530,000 • 6 bed • 5 bath • 1975 ft²
4 bedroom semi-detached house for sale in Joseph Major Close, Weston Woods, Crewe, CW2 — £280,000 • 4 bed • 2 bath • 1217 ft²
5 bedroom detached house for sale in St. Augustines Drive, Weston, Crewe, Cheshire, CW2 — £550,000 • 5 bed • 3 bath • 2263 ft²
3 bedroom detached house for sale in Cemetery Road, Weston, Crewe, Cheshire, CW2 — £300,000 • 3 bed • 2 bath • 1213 ft²
3 bedroom terraced house for sale in Parklands Drive, Weston, Crewe, CW2 — £245,000 • 3 bed • 2 bath • 1179 ft²
5 bedroom detached house for sale in St. Augustines Drive, Weston, Crewe, Cheshire, CW2 — £550,000 • 5 bed • 4 bath • 2623 ft²


































































































