Spacious family living with sweeping west-facing gardens and flexible reception space.
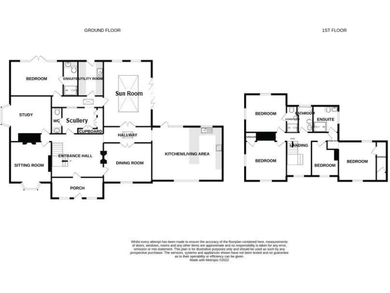
Five bedrooms, three with en-suite plus ground-floor bedroom with en-suite
A substantial five-bedroom detached house combining Edwardian character with modern fittings, set on a very large plot at the edge of Woodhall Spa. The house offers flexible family accommodation including four reception rooms, a large open-plan living kitchen, a ground-floor bedroom with en-suite and three further en-suites upstairs. Large lawned gardens face west across open countryside, creating a private setting and strong sunset views.
Externally there is a double garage, wide gravel driveway with turning circle and ample parking for many vehicles, plus a useful range of outbuildings including a recreation/garden room. The open-plan kitchen/living space opens to a courtyard patio through two sets of bi-fold doors, linking indoor and outdoor entertaining spaces. Broadband speeds are fast and the area records very low crime.
Practical points: the property sits off a single-track lane in a remoter hamlet setting, which suits buyers seeking privacy but may feel isolated to some. Council tax is above average. While the house is presented to a high standard overall, some service areas (scullery/utility) may benefit from updating to match the principal living spaces. Viewings are recommended to appreciate the scale, layout and countryside aspect fully.
5 bedroom detached house for sale in Horncastle Road, Woodhall Spa, LN10 — £625,000 • 5 bed • 4 bath • 2200 ft²
5 bedroom detached house for sale in St. Leonards Avenue, Woodhall Spa, Lincolnshire, LN10 — £369,950 • 5 bed • 2 bath • 1588 ft²
4 bedroom detached house for sale in Green Lane, Woodhall Spa, Lincolnshire, LN10 — £550,000 • 4 bed • 1 bath • 1661 ft²
3 bedroom detached house for sale in 61 Woodland Drive, Woodhall Spa, LN10 — £525,000 • 3 bed • 2 bath • 1891 ft²
3 bedroom detached house for sale in 20 Mill Close, Woodhall Spa, LN10 — £395,000 • 3 bed • 3 bath
5 bedroom detached house for sale in Abbey Lane, Woodhall Spa, LN10 — £550,000 • 5 bed • 2 bath • 2235 ft²






















































































































