Large family home with garage, parking and south-facing garden near shops.
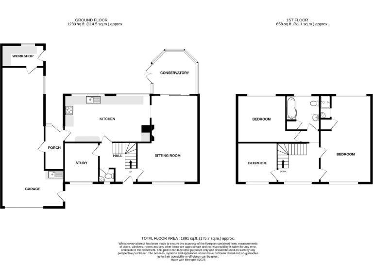
Large 1,891 sqft family house with flexible 3–4 bedroom layout
Set on a generous plot in a peaceful woodland setting, this detached three-bedroom house offers spacious family living with flexible layout options. The large dual-aspect sitting room, bright conservatory and modern kitchen create comfortable day-to-day spaces, while the south-facing rear garden provides private outdoor space and good natural light.
Practical advantages include an integral tandem double garage, substantial off-street parking and a lengthy driveway — useful for families with multiple vehicles, hobbies or storage needs. The property was originally built as a four-bedroom home and has been reconfigured to create a generous dual-aspect principal bedroom; it would be straightforward to revert to four bedrooms if required.
Local amenities are within easy walking distance: shops, social facilities and attractive woodland walks are nearby, plus a selection of well-regarded schools. The area is very affluent with very low crime, making it especially suitable for family buyers seeking a quiet small-town fringe location.
Notable factual considerations: broadband speeds are slow in this area, council tax is above average, and tenure details are not provided. Overall the house is well maintained for its era but remains a mid‑late 20th century construction, so buyers should expect the usual ongoing maintenance and potential to update some finishes to personal taste.
4 bedroom detached house for sale in Tor O Moor Road, Woodhall Spa, LN10 — £725,000 • 4 bed • 2 bath • 2391 ft²
3 bedroom detached bungalow for sale in 14 Woodland Drive, Woodhall Spa, LN10 — £439,950 • 3 bed • 2 bath • 1336 ft²
3 bedroom detached bungalow for sale in Four Oaks, 30 Kirkby Lane, Woodhall Spa, LN10 — £465,000 • 3 bed • 2 bath • 1308 ft²
5 bedroom detached house for sale in Horncastle Road, Woodhall Spa, LN10 — £625,000 • 5 bed • 4 bath • 2200 ft²
2 bedroom detached bungalow for sale in Sandy Lane, Woodhall Spa, Lincolnshire, LN10 — £300,000 • 2 bed • 1 bath • 973 ft²
4 bedroom detached house for sale in Woodland Drive, Woodhall Spa, LN10 — £575,000 • 4 bed • 2 bath • 1653 ft²


























































