Move-in-ready family home with garden and driveway in Ashmore Park.
Four bedrooms; suitable for family or first-time buyer
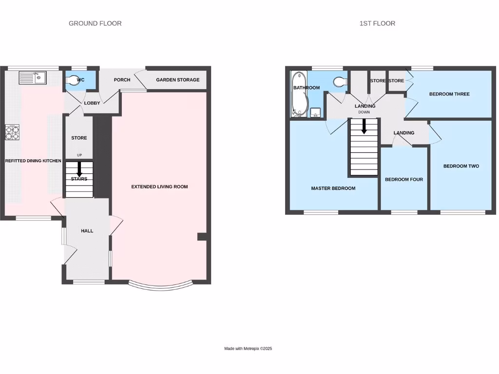
This extended four-bedroom semi-detached home on Gorse Road is a practical family starter in Ashmore Park, offered with no upward chain. The ground floor has a useful guest WC and a bright extended living room; the modern refitted dining kitchen and recently laid patio create straightforward everyday living and outdoor space. Off-street parking and a decent enclosed rear garden add real convenience for families.
Location is a strong selling point for families: several nearby primary and secondary schools rated Good, regular bus links, fast broadband and easy road access to Wolverhampton, Walsall and Cannock. Council tax is very low, and the property is freehold, which helps running costs and long-term affordability.
Be clear on the limitations: the house has just one first-floor bathroom for four bedrooms, and the overall internal size is modest. The construction era (c.1950–66) and timber-frame walls with partial insulation (assumed) may mean energy efficiency and insulation improvements are worth budgeting for. The area is classified as deprived, though the immediate neighbourhood shows low crime and good local amenities.
For a family seeking an affordable, move-in-ready base with scope to personalise and improve, this property offers sensible value. It suits buyers looking for convenience, school access and straightforward outdoor space, with potential to upgrade energy performance and internal space use over time.
3 bedroom semi-detached house for sale in Gorse Road, Ashmore Park Wednesfield, Wolverhampton, WV11 — £225,000 • 3 bed • 1 bath • 1045 ft²
3 bedroom semi-detached house for sale in Gorse Road, Ashmore Park Wednesfield, Wolverhampton, WV11 — £230,000 • 3 bed • 1 bath • 969 ft²
3 bedroom semi-detached house for sale in Ryan Avenue, Ashmore Park, Wolverhampton, WV11 — £230,000 • 3 bed • 1 bath
3 bedroom semi-detached house for sale in Gorse Road, Ashmore Park, Wednesfield, Wolverhampton, WV11 — £235,000 • 3 bed • 1 bath • 986 ft²
3 bedroom semi-detached house for sale in Ashmore Avenue, Ashmore Park, Wolverhampton, WV11 — £210,000 • 3 bed • 1 bath • 420 ft²
3 bedroom semi-detached house for sale in Ashmore Avenue, Ashmore Park, WV11 — £200,000 • 3 bed • 1 bath


































































































