Three-bedroom family home with garden pergola and generous off-street parking.
Three bedrooms with a modern fitted shower room and underfloor heating in bathroom
Spacious lounge with patio doors leading to pergola entertainment area
Bright kitchen-diner with dual-aspect bow windows, family-friendly layout
Block-paved driveway provides ample off-street parking for multiple cars
Tiered rear garden with pergola — great for entertaining but modest plot size
Built 1967–75; timber-frame with partial insulation—potential insulation work needed
Located in an outer-city, higher-deprivation area; local amenities and good schools nearby
Single bathroom only; families may prefer additional WC/ensuite options
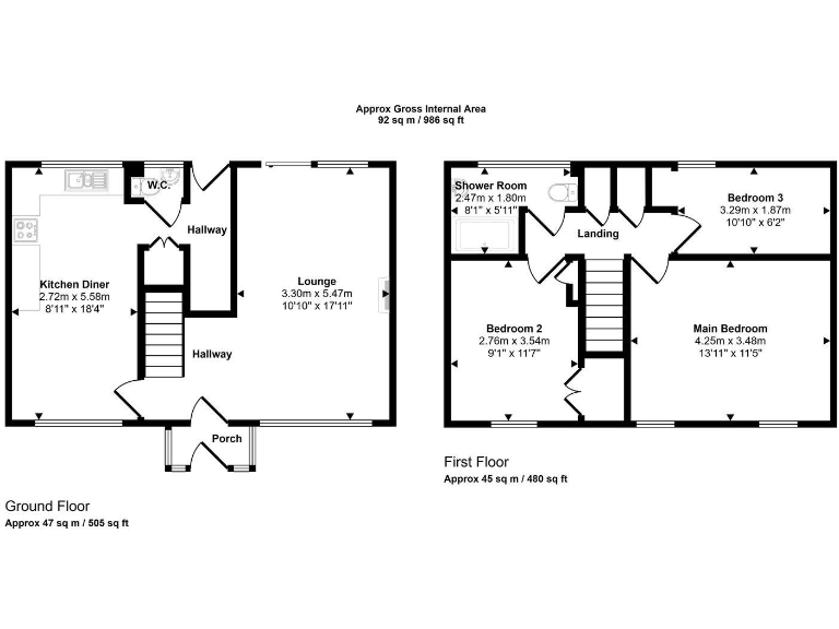
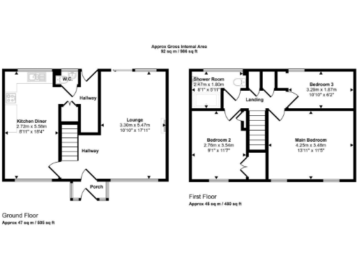
This well-presented three-bedroom semi-detached house on Ashmore Park offers a practical family layout and easy parking. The ground floor features a bright kitchen-diner, a spacious lounge with patio doors to the pergola, and a convenient guest WC — ideal for everyday family living and entertaining in the tiered rear garden.
Upstairs are three good-sized bedrooms and a modern fitted shower room with underfloor heating. The property benefits from double glazing and mains gas central heating, giving comfortable living now, while the block‑paved driveway provides ample off-street parking for several cars.
Buyers should note the home sits in an outer-city, higher‑need area and the plot is modest in size. Construction era suggests timber-frame elements with partial insulation assumed; upgrading insulation or carrying out modernisation works may improve energy efficiency. Overall, this freehold house presents immediate move-in appeal with sensible scope for further improvement to add value.
3 bedroom semi-detached house for sale in Gorse Road, Ashmore Park Wednesfield, Wolverhampton, WV11 — £230,000 • 3 bed • 1 bath • 969 ft²
4 bedroom semi-detached house for sale in Gorse Road, Ashmore Park, Wednesfield, Wolverhampton, West Midlands, WV11 — £230,000 • 4 bed • 1 bath • 1045 ft²
3 bedroom semi-detached house for sale in Gorse Road, Ashmore Park Wednesfield, Wolverhampton, WV11 — £225,000 • 3 bed • 1 bath • 1045 ft²
3 bedroom semi-detached house for sale in Brindley Avenue, Ashmore Park, Wolverhampton, WV11 — £240,000 • 3 bed • 1 bath • 632 ft²
3 bedroom semi-detached house for sale in Baylis Avenue, Wolverhampton, West Midlands, WV11 — £240,000 • 3 bed • 1 bath • 795 ft²
2 bedroom semi-detached house for sale in Wood Avenue, Wednesfield, Wolverhampton, WV11 — £195,000 • 2 bed • 1 bath • 992 ft²


































































































































