**Standout Features:**
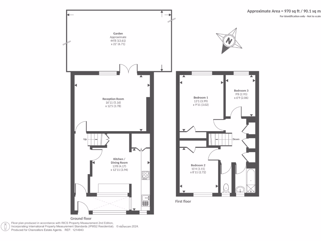
- **Three Bedrooms:** Ideal for families or roommates.
- **End of Terrace Design:** Offers more privacy and light.
- **Living/Dining Area:** Open layout perfect for entertaining.
- **Front and Rear Gardens:** Outdoor space for relaxation and potential gardening.
- **Chain-Free Sale:** Immediate possession available.
- **Good Local Schools:** Multiple primary schools rated 'Good' by Ofsted.
- **Excellent Broadband and Mobile Signal:** Connectivity is assured.
**Notable Concerns:**
- **Property Age:** Built between 1967-1975; may require some updates.
- **High Crime Area:** Potential safety concerns for residents.
- **Small Plot Size:** Limited outdoor space compared to similar properties.
---
This charming end-of-terrace three-bedroom home in East Oxford presents an excellent opportunity for first-time buyers or investment seekers. With an inviting living/dining area that flows into front and rear gardens, it boasts the potential for comfortable family living. The contemporary styled interiors feature laminate flooring and natural light flooding through, giving a modern sense to the home, despite needing cosmetic updates.
Located in a culturally diverse urban area with essential amenities just a stroll or bike ride away, this home comes with the added benefit of being chain-free, allowing for a smooth transition. Strong local schooling options, including several 'Good' rated primary schools, enhance its appeal for families.
However, prospective buyers should note that while the property offers many positives, attention will be required in addressing the home's age and considering the higher crime rates in the locale. With a price of £375,000, this property represents a blend of potential and investment for those willing to act quickly. Don’t miss out on a chance to bring your vision to life in this East Oxford gem!
3 bedroom end of terrace house for sale in Ablett Close, East Oxford, OX4 — £475,000 • 3 bed • 1 bath • 762 ft²
3 bedroom terraced house for sale in Nowell Road, Oxford, OX4 — £390,000 • 3 bed • 2 bath • 750 ft²
3 bedroom terraced house for sale in Littlemore, Oxford, OX4 — £325,000 • 3 bed • 1 bath • 826 ft²
2 bedroom semi-detached house for sale in East Oxford, Oxford, OX4 — £300,000 • 2 bed • 1 bath • 746 ft²
3 bedroom terraced house for sale in Sawpit Road, Oxford, OX4 — £365,000 • 3 bed • 1 bath • 1040 ft²
3 bedroom end of terrace house for sale in Redmoor Close, Oxford, OX4 — £375,000 • 3 bed • 1 bath • 971 ft²


















































































