Chain-free freehold with garden and clear scope for improvement and extension.
- Three bedrooms in a traditional terraced layout
- Front and rear gardens plus rear hardstanding
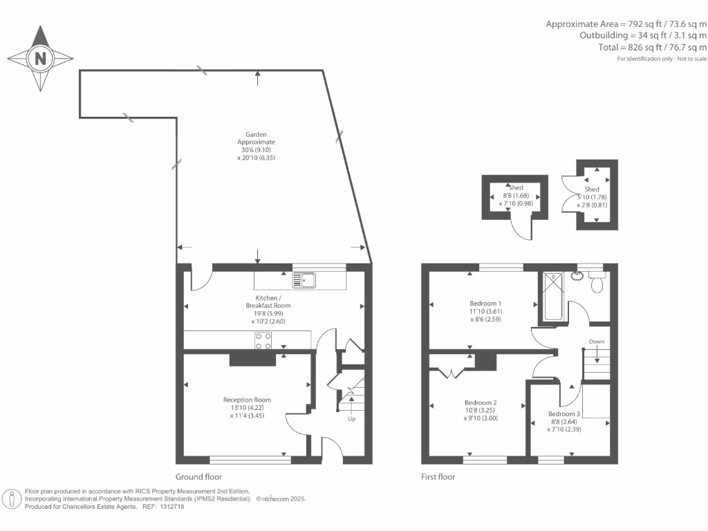
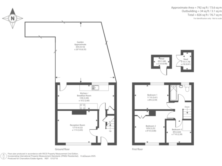
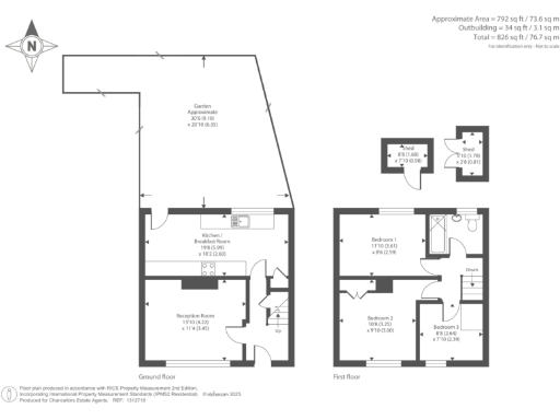
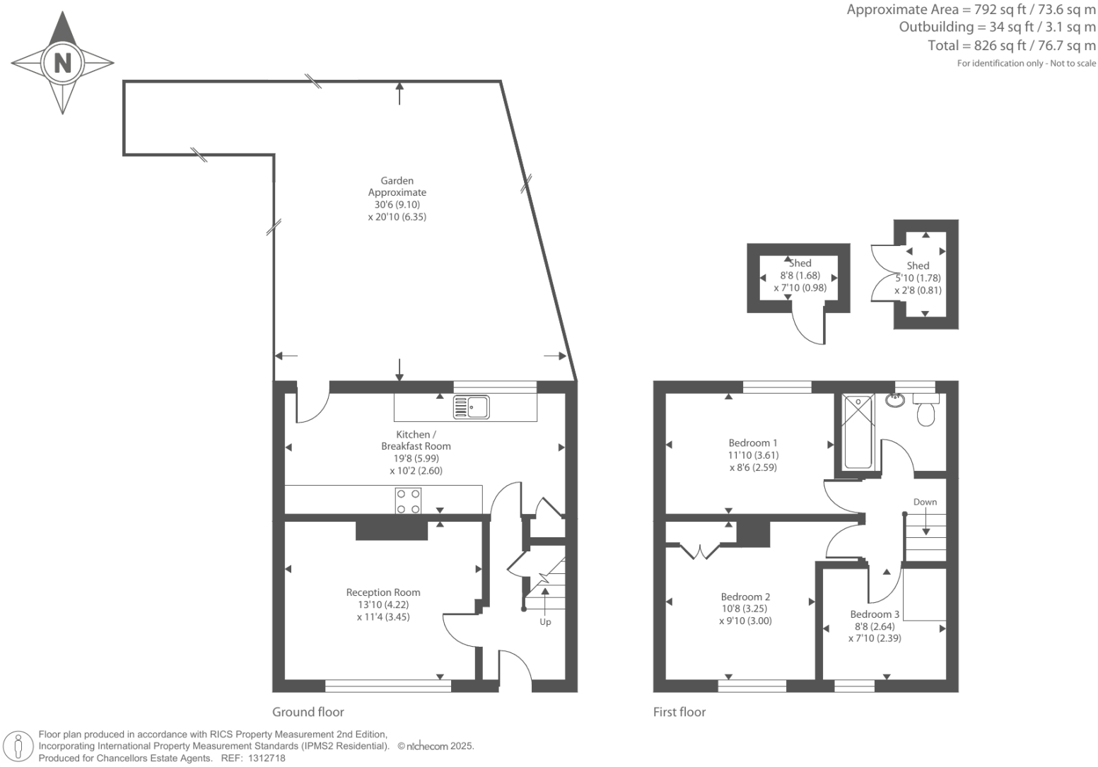
- Approx. 826 sq ft (73.6 sqm) internal space
- PRC certificate in place — factor specialist advice
- Double glazing and mains gas central heating
- Requires modernization; good extension potential (STPP)
- Small plot; cavity walls assumed uninsulated
- High local crime and area deprivation to consider
A practical three-bedroom terraced home in Littlemore offering straightforward space for a growing family or first-time buyer prepared to improve. The layout is traditional with a sitting room, galley kitchen and a first-floor bathroom, arranged over approximately 73.6 sqm (about 826 sq ft).
Outside there are front and rear gardens and a rear hardstanding — useful for children’s play, bikes or a small project garden. The property has double glazing and gas central heating, and is sold freehold and chain free, making a quicker move possible.
Important considerations: a PRC certificate is in place and the house is of post‑war construction with cavity walls likely uninsulated, so buyers should factor potential structural or remedial costs into their budget. The interior needs modernization and there is opportunity to extend subject to planning permission.
Local amenities and schools are within easy reach and Oxford city centre lies about 2.4 miles away. The area has fast broadband and excellent mobile signal, but local crime levels are high and the neighbourhood is relatively deprived, which buyers should weigh alongside the property’s affordability and development potential.
3 bedroom terraced house for sale in Priory Road, Oxford, OX4 — £350,000 • 3 bed • 1 bath • 862 ft²
3 bedroom semi-detached house for sale in Kempson Crescent, Oxford, OX4 — £310,000 • 3 bed • 1 bath • 755 ft²
3 bedroom end of terrace house for sale in Alice Smith Square, Littlemore, Oxford, OX4 — £400,000 • 3 bed • 1 bath • 851 ft²
3 bedroom end of terrace house for sale in Giles Road, Oxford, OX4 — £375,000 • 3 bed • 1 bath • 937 ft²
3 bedroom end of terrace house for sale in St. Nicholas Road, Oxford, OX4 — £379,995 • 3 bed • 1 bath • 888 ft²
3 bedroom terraced house for sale in Lambourn Road, Oxford, OX4 — £375,000 • 3 bed • 1 bath • 846 ft²


















































































