Well-presented two-bedroom freehold with garden, parking and good transport links.
Two double bedrooms with built-in storage
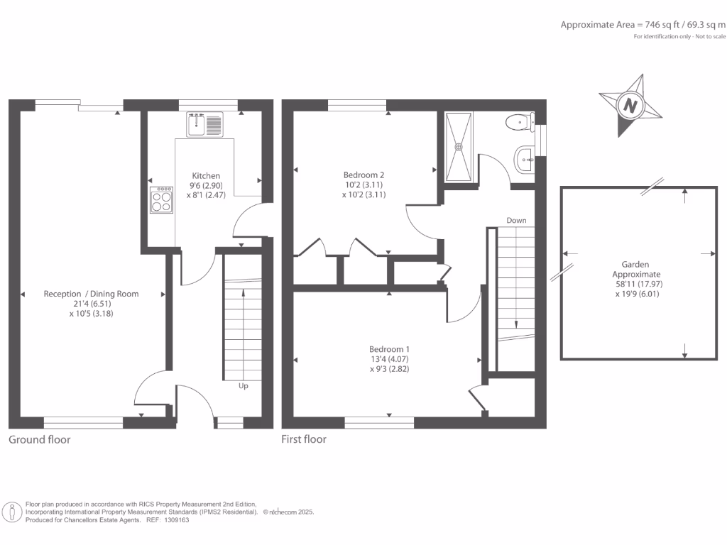
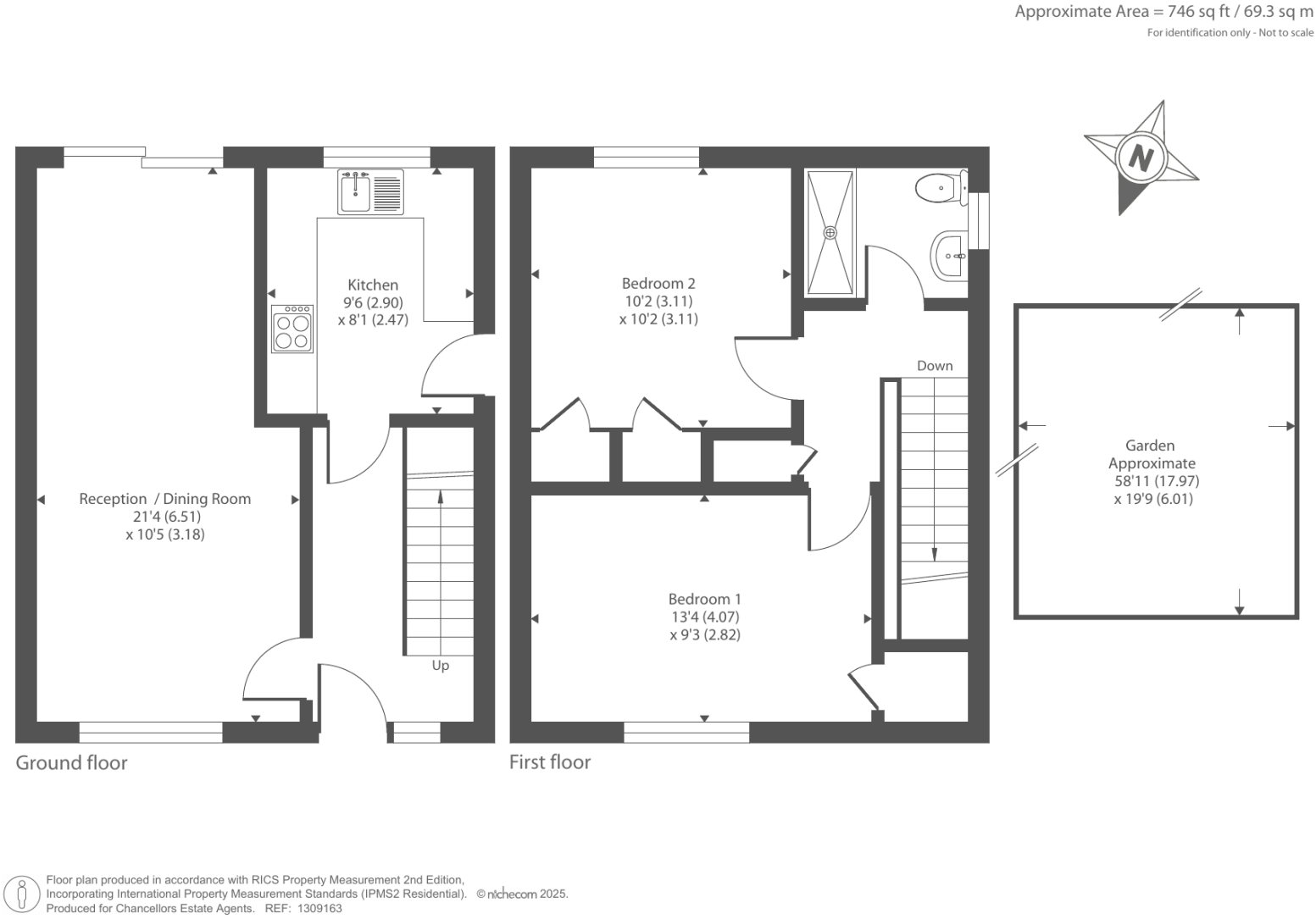
A well-presented two-bedroom semi-detached house in East Oxford, offered freehold and ready for immediate occupation. The dual-aspect living/dining room opens via double doors to a private, enclosed south-west facing garden that catches afternoon and evening sun. The kitchen has space for appliances and useful storage; both bedrooms are doubles with built-in storage. Council tax is described as affordable and broadband and mobile signal are strong, making the home well suited to first-time buyers or a small family.
Practical positives include off-street parking on the driveway, mains gas central heating with boiler and radiators, double glazing, and no flood risk. The property sits on a decent plot at the end of a no-through road, close to local supermarkets, bus services into Oxford and local schools rated Good. These features combine to deliver straightforward everyday living and easy access to the city.
Important facts and considerations: the house is of Laing Easiform construction (system-built, 1950s–1960s era), which can affect mortgage or insurance options for some lenders—buyers should check lending criteria early. The area is classed as very deprived in official measures, and local crime is average; this may influence future resale and rental prospects. There is one family bathroom serving two bedrooms.
Overall, this property offers an accessible, well-lit home with garden and parking in a convenient East Oxford location. It will suit first-time buyers or investors comfortable with system-built homes, and those looking for a tidy house with modest scope for updating rather than a full renovation.
2 bedroom semi-detached house for sale in Pottle Close, Oxford, OX2 — £382,500 • 2 bed • 1 bath • 605 ft²
2 bedroom semi-detached house for sale in Hubble Close, Headington, OX3 — £375,000 • 2 bed • 1 bath • 754 ft²
2 bedroom terraced house for sale in East Oxford, Oxford, OX4 — £425,000 • 2 bed • 2 bath • 838 ft²
2 bedroom semi-detached house for sale in Van Diemans Lane, Oxford, OX4 — £350,000 • 2 bed • 1 bath • 824 ft²
2 bedroom end of terrace house for sale in East Oxford, Oxfordshire, OX4 — £375,000 • 2 bed • 1 bath • 613 ft²
2 bedroom terraced house for sale in Littlemore, East Oxford, OX4 — £280,000 • 2 bed • 1 bath • 635 ft²










































































