Chain-free one-bedroom with long lease and refurbishment potential.
Chain-free garden flat with street-level access and private outdoor space|Very long lease — approximately 948 years remaining|Sold as share of freehold; same ownership for 25 years|Small rooms and standard ceiling heights; compact overall footprint|Signs of damp present; refurbishment likely required|Above-average local crime levels may affect insurance/certainty|Opportunity to buy upstairs flat too — combine into one house|Good transport links, local amenities, and nearby Good-rated schools
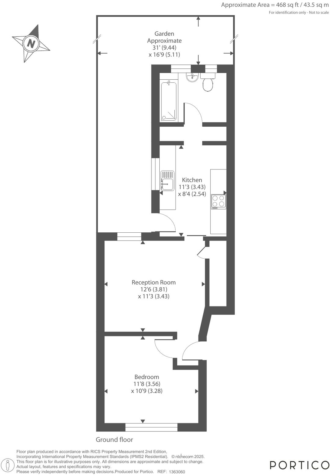
This ground-floor one-bedroom garden flat on Heyworth Road offers straightforward, chain-free ownership and a very long lease (circa 948 years). The property suits first-time buyers or investors seeking a buy-and-hold asset with immediate rental potential; the flat has been in the same ownership for 25 years and is sold as share of freehold.
The accommodation is compact with standard ceiling heights and Victorian period character externally. There is a private patio/garden that provides valuable outdoor space at street level. The layout also offers the practical option to purchase the upstairs flat as well, creating potential to combine into a single house or increase rental yield when sold together.
Buyers should note material defects and limitations: rooms are small, there are signs of damp and the property will suit those comfortable with some refurbishment. The area has above-average crime levels compared with national data, which may affect insurance and some buyers’ preferences. Transport links and local amenities are good, and nearby schools are rated well.
Overall this is a practical, long-lease investment or entry-level home with garden access and scope to improve value through modest renovation or by acquiring the upstairs flat to create a larger dwelling.
1 bedroom flat for sale in Stork Road, London, E7 — £350,000 • 1 bed • 1 bath • 574 ft²
3 bedroom flat for sale in Milner Road, LONDON, London, E15 — £390,000 • 3 bed • 1 bath • 723 ft²
1 bedroom flat for sale in Cann Hall Road, London, E11 — £259,950 • 1 bed • 1 bath
1 bedroom ground floor flat for sale in Sheringham Avenue, London, E12 — £265,000 • 1 bed • 1 bath • 496 ft²
1 bedroom flat for sale in GURNEY ROAD, Maryland, London, E15 — £265,000 • 1 bed • 1 bath • 484 ft²
2 bedroom apartment for sale in 125 Harrow Road, London, E11 — £390,000 • 2 bed • 1 bath • 454 ft²






































































