### Standout Features:
- Charming 16th-century thatched cottage.
- Set on approximately 1.6 acres of private countryside.
- Equestrian paddock with useful outbuildings and workshop.
- Spacious living areas with potential for extension (STPP).
- Chain-free sale for easy transaction.
- Period features including an inglenook fireplace and exposed beams.
### Potential Concerns:
- Average-sized living space may require modernization.
- Listed status may complicate renovation plans.
- Broadband speeds are very slow; mobile signal is average.
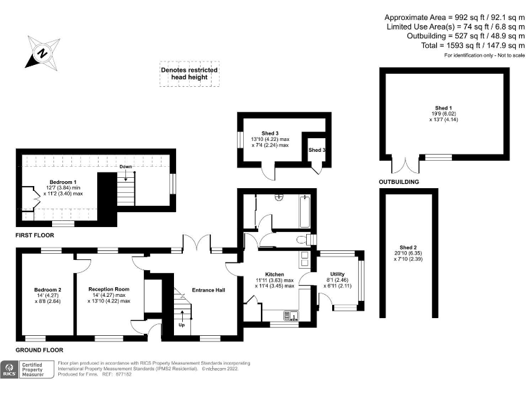
Nestled in a tranquil countryside setting, this enchanting thatched cottage, steeped in history, offers a perfect blend of rustic charm and future potential. Spanning approximately 1.6 acres, the property includes a well-maintained paddock—ideal for equestrian enthusiasts or those wishing to embrace a smallholding lifestyle. Inside, the cottage features a generous living room with a traditional inglenook fireplace, a dining kitchen, and two delightful bedrooms, with the upper floor providing a versatile landing space that can serve as a study.
The extensive grounds present exciting possibilities for expansion (subject to planning permission), allowing you to create your dream family home while retaining the captivating period features that give it such character. With outbuildings and ample off-street parking, this property is an exceptional opportunity for families or investors looking to enjoy a peaceful, rural lifestyle. The chain-free status adds an extra layer of convenience for a smooth purchase. Don’t miss out on this unique sanctuary; it’s waiting for you to call it home.
4 bedroom detached house for sale in New Street, Canterbury, CT3 — £595,000 • 4 bed • 2 bath • 2150 ft²
2 bedroom house for sale in The Street, Ash, Canterbury, CT3 — £335,000 • 2 bed • 1 bath • 660 ft²
3 bedroom semi-detached house for sale in Wellhouse Lane, Shottenden, Canterbury, Kent, CT4 — £550,000 • 3 bed • 2 bath • 1234 ft²
3 bedroom detached house for sale in Summerfield, Woodnesborough, Sandwich, Kent, CT13 — £1,250,000 • 3 bed • 3 bath • 5295 ft²
4 bedroom detached house for sale in Swingfield, CT15 — £585,000 • 4 bed • 2 bath • 1562 ft²
4 bedroom detached house for sale in Tinkers Thatch, Thornden Wood Road, Herne Bay, CT6 — £900,000 • 4 bed • 2 bath • 2400 ft²


































































































