**Standout Features:**
- Modern studio office space in Notting Hill
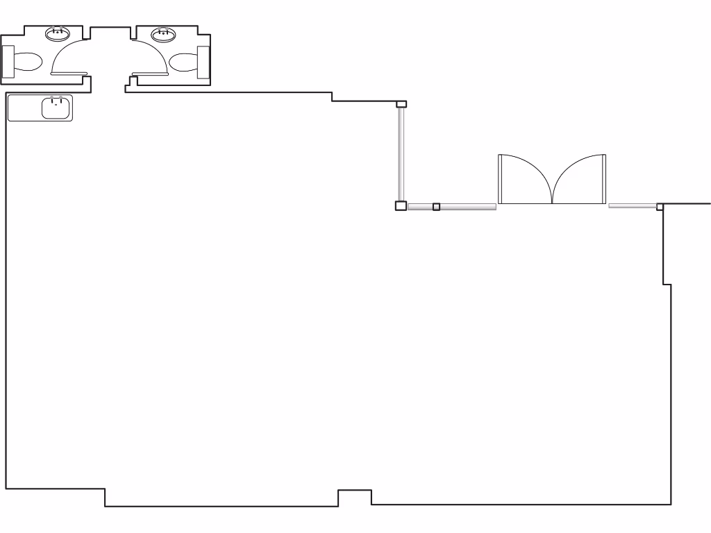
- Total area: 785 sq ft
- Excellent natural light with large windows and high ceilings
- Self-contained unit with kitchenette and bathroom
- Secure cycle storage located in a private courtyard
- Close to local amenities, boutique shops, and dining options
- 10-minute walk to Portobello Road
This contemporary studio office in Notting Hill is a rare gem, designed for professionals seeking a bright and welcoming work environment. Featuring a spacious layout with modern industrial aesthetics—including tall ceilings and expansive glass windows—this property maximizes natural light and creates an inspiring workspace. The kitchenette and bathroom add convenience, while the secure cycle storage makes it perfect for eco-conscious commuters.
Located in a vibrant area known for its cosmopolitan atmosphere, you’ll enjoy close proximity to upscale shops, trendy cafes, and cultural hotspots, all within a short stroll. The property’s freehold status offers long-term security, while its spacious interior provides ample renovation potential to personalize your office setup. Don't miss this opportunity to secure a unique workspace in a sought-after location—this property won’t last long!
Office for sale in 225-227 Walmer Road (Unit 1), Notting Hill, London, W11 4EY, W11 — £415,000 • 1 bed • 1 bath • 443 ft²
Office for sale in Studio 10, 92 Lots Road, Chelsea, SW10 0QD, SW10 — £630,000 • 1 bed • 1 bath • 1100 ft²
2 bedroom flat for sale in Needham Road, London, W11 — £845,000 • 2 bed • 1 bath • 1069 ft²
Office for sale in The Curve, 10 Bard Road, London, W10 6TP, W10 — POA • 1 bed • 1 bath • 2307 ft²
Studio flat for sale in Kensington Church Street, Kensington, London, W8 — £420,000 • 1 bed • 1 bath • 364 ft²
Studio flat for sale in Palace Gardens Terrace, Kensington, W8 — £395,000 • 1 bed • 1 bath • 339 ft²


































