New-build one-bed with concierge and gym, minutes from three Tube stations.
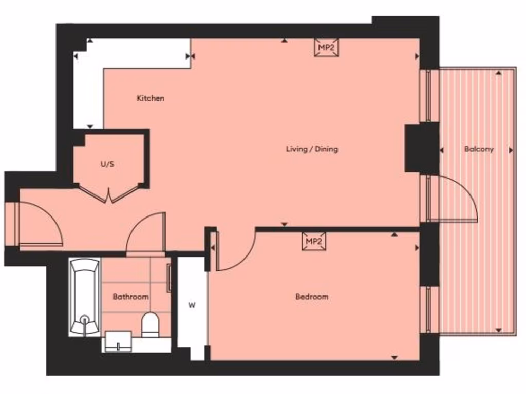
566 sq ft one-bedroom open-plan apartment with large windows
This one-bedroom apartment in Oval Village offers contemporary city living across 566 sq ft with an open-plan layout and large windows that bring in natural light. As a new-build home with a 993-year lease it suits buyers who want a low-maintenance, move-in-ready property and the reassurance of long leasehold tenure.
Residents benefit from on-site amenities including concierge and gym facilities, plus excellent mobile and fast broadband — practical for working from home. The location places three Tube stations within a short walk and offers easy access to central London attractions, parks and a wide choice of shops and eateries.
Buyers should be aware the immediate neighbourhood records very high crime levels and is classified as a deprived area; this may affect perceptions, insurance and resale timing. The apartment sits within a high-density urban setting, so those seeking quiet suburbia or countryside views should consider this carefully.
Overall, this modern one-bedroom is well suited to a first-time buyer or investor wanting a conveniently located, low-maintenance London base with strong connectivity and communal facilities, provided they accept the local area’s social challenges.
1 bedroom flat for sale in Oval Village,
275 Kennington Lane, SE11 — £690,000 • 1 bed • 1 bath • 561 ft²
3 bedroom flat for sale in Oval Village,
275 Kennington Lane, SE11 — £1,510,000 • 3 bed • 2 bath • 985 ft²
2 bedroom flat for sale in Oval Village,
275 Kennington Lane, SE11 — £1,015,000 • 2 bed • 1 bath • 693 ft²
Studio flat for sale in Oval Village,
275 Kennington Lane, SE11 — £595,000 • 1 bed • 1 bath • 439 ft²
1 bedroom flat for sale in Phoenix Court, Kennington Lane, London, SE11 — £600,000 • 1 bed • 1 bath • 541 ft²
2 bedroom flat for sale in Oval Village,
281 Kennington Lane, SE11 — £950,000 • 2 bed • 2 bath • 846 ft²














































