Shared-ownership new-build with concierge, gym and superb zone 1–2 transport links.
Shared-ownership new-build with Own New scheme availability
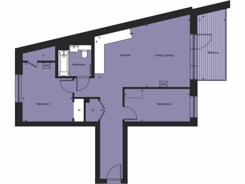
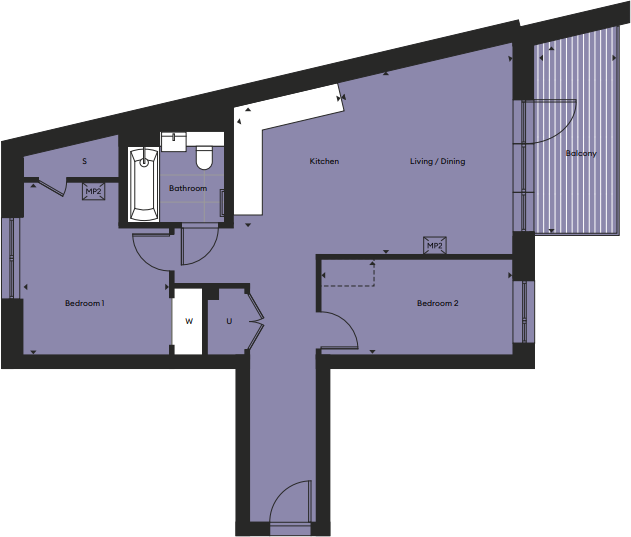
693 sq ft two-bedroom L-shaped layout, average overall size
Single contemporary bathroom; suitable for couples or small families
Long lease (circa 993 years) reduces long-lease risk
On-site concierge and gym; designed to a high specification
Excellent transport links: Oval, Vauxhall, Kennington within walking distance
Very high local crime rate and area flagged as deprived
No private outdoor space mentioned; check for maintenance/service charges
This two-bedroom apartment in Oval Village offers new-build specification and long lease security, aimed at buyers seeking an affordable route into central London via shared ownership. The layout is L-shaped, with two well-lit bedrooms — one large with high ceilings and expansive windows — and a single contemporary bathroom. Residents benefit from on-site concierge, gym facilities and excellent transport links to Oval, Vauxhall and Kennington stations (all within a short walk).
The property suits first-time buyers who prioritise location and communal amenities over private outdoor space. The flat is an average-sized 693 sq ft with a bright, modern finish throughout; the design is clean and minimal, ready for immediate occupation. The remaining lease (circa 993 years) removes common long-lease concerns and supports future resale.
Be candid about the local context: the immediate area scores high for crime and is flagged as deprived, which may deter some buyers and could affect insurance or perceptions. There is strong access to shops, cafes, parks and transport, and nearby schools range from outstanding to requires improvement—families should review each school's performance.
This home is offered through the Own New shared-ownership scheme, making central London ownership more accessible. It represents practical city living with communal conveniences, though buyers should weigh the neighbourhood profile and single bathroom against the convenience of location and long lease.
1 bedroom flat for sale in Oval Village,
275 Kennington Lane, SE11 — £690,000 • 1 bed • 1 bath • 561 ft²
3 bedroom flat for sale in Oval Village,
275 Kennington Lane, SE11 — £1,510,000 • 3 bed • 2 bath • 985 ft²
Studio flat for sale in Oval Village,
275 Kennington Lane, SE11 — £595,000 • 1 bed • 1 bath • 439 ft²
1 bedroom flat for sale in Oval Village,
275 Kennington Lane, SE11 — £750,000 • 1 bed • 1 bath • 566 ft²
1 bedroom flat for sale in Kennington Lane, London, SE11 — £620,000 • 1 bed • 1 bath • 612 ft²
2 bedroom apartment for sale in Oval Village, London, SE11 — £985,000 • 2 bed • 2 bath • 756 ft²






























































































