Contemporary one-bed with concierge, gym and excellent transport links between Zones 1 and 2..
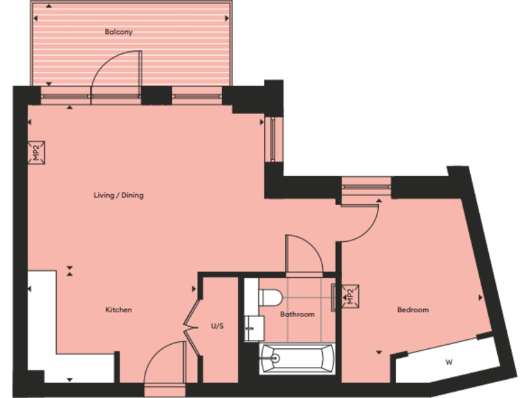
New-build one-bedroom, open-plan living, 561 sq ft
A contemporary one-bedroom apartment in Oval Village, positioned between Zones 1 and 2 and under ten minutes’ walk from Oval, Vauxhall and Kennington stations. The open-plan living space and large windows deliver city views and natural light across an efficient 561 sq ft layout. New-build specification, long lease (993 years) and residents’ amenities — concierge and gym — add convenience and long-term appeal. Available on the Own New scheme; enquire for eligibility and details.
This home suits a first-time buyer seeking a low-maintenance, modern apartment with strong transport links and communal facilities. The contemporary fixtures, recessed lighting and neutral palette make the flat move-in ready and straightforward to personalise. Fast broadband and excellent mobile signal support home-working and streaming.
Buyers should note material negatives plainly: the local area is classified as deprived and recorded crime levels are very high. The property is leasehold. Prospective purchasers should factor neighbourhood safety, local services and insurance considerations into their decision and view the area at different times of day.
Oval Village sits on a restored historic gasholder site, creating a distinctive community with nearby green spaces such as Kennington Park. For those prioritising central London access, culture and transport, this apartment offers a compact, contemporary base with long-lease security and resident facilities.
3 bedroom flat for sale in Oval Village,
275 Kennington Lane, SE11 — £1,510,000 • 3 bed • 2 bath • 985 ft²
2 bedroom flat for sale in Oval Village,
275 Kennington Lane, SE11 — £1,015,000 • 2 bed • 1 bath • 693 ft²
1 bedroom flat for sale in Oval Village,
275 Kennington Lane, SE11 — £750,000 • 1 bed • 1 bath • 566 ft²
Studio flat for sale in Oval Village,
275 Kennington Lane, SE11 — £595,000 • 1 bed • 1 bath • 439 ft²
2 bedroom flat for sale in Oval Village,
281 Kennington Lane, SE11 — £950,000 • 2 bed • 2 bath • 846 ft²
1 bedroom flat for sale in Kennington Lane, London, SE11 — £620,000 • 1 bed • 1 bath • 612 ft²














































































