Large city-centre redevelopment with strong rental upside and excellent transport links.
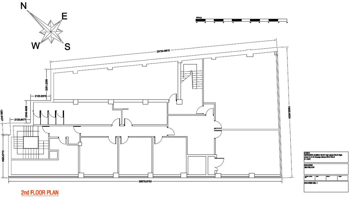
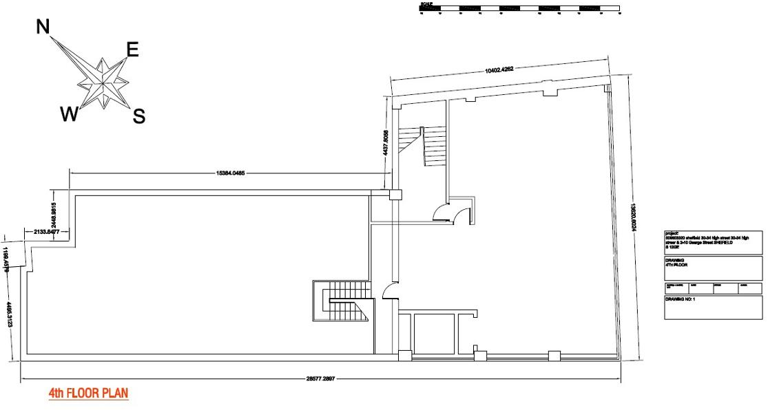
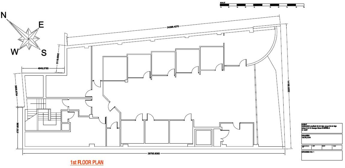
Freehold multi-storey retail block, circa 13,000 sqft overall
This substantial freehold retail block sits on Sheffield’s busy High Street, offering immediate retail presence with a large glazed frontage and excellent pedestrian footfall. The ground floor and basement are ready for occupation and expected to produce around £70,000 pa. The site benefits from direct tram access and proximity to major national names, supporting strong leasing demand.
Above the retail are four upper floors (circa 7,629 sqft) with clear redevelopment potential. Preliminary assumptions indicate conversion to around 18 one-bed apartments could help drive a combined ERV of approximately £265,000 pa and a GDV near £3.5m. The property’s size (circa 13,000 sqft) and city-centre position make it suitable for a flagship retail operator or mixed-use repositioning for rental housing.
Buyers should note material caveats: the income and GDV figures are indicative only and reliant on securing planning consents for subdivision or residential conversion. The building is offered vacant freehold, but upper-floor conversion will require architectural, survey and planning work. The immediate area records very high crime levels, which may affect lettings, insurance and management costs.
This is a value-add investment for a purchaser prepared to progress surveys, planning and refurbishment. With strong transport links, high footfall and a large usable footprint, the asset presents a clear redevelopment route for experienced investors seeking central Sheffield exposure.
High street retail property for sale in 2 Middlewood Road, Sheffield, S6 4GY, S6 — £195,000 • 1 bed • 1 bath • 2025 ft²
Commercial development for sale in 16-18 & 20 Dixon Lane, Sheffield, S1 2AL, S1 — £450,000 • 1 bed • 1 bath • 5765 ft²
Office for sale in Church House, 113 Charles Street, Sheffield City Centre, Sheffield, South Yorkshire, S1 2ND, S1 — £500,000 • 1 bed • 1 bath • 3797 ft²
Commercial property for sale in 36-40 Waingate, Sheffield, S3 8LB, S3 — £400,000 • 1 bed • 1 bath • 2428 ft²
Residential development for sale in Ecclesall Road, S11 — £600,000 • 6 bed • 3 bath • 2820 ft²
Shop for sale in 44 Bank Street, Sheffield, South Yorkshire, S1 2DS, S1 — £300,000 • 1 bed • 1 bath • 2458 ft²














































































