**Property Highlights:**
- Prime Ecclesall Road location, the “Golden Mile” of Sheffield
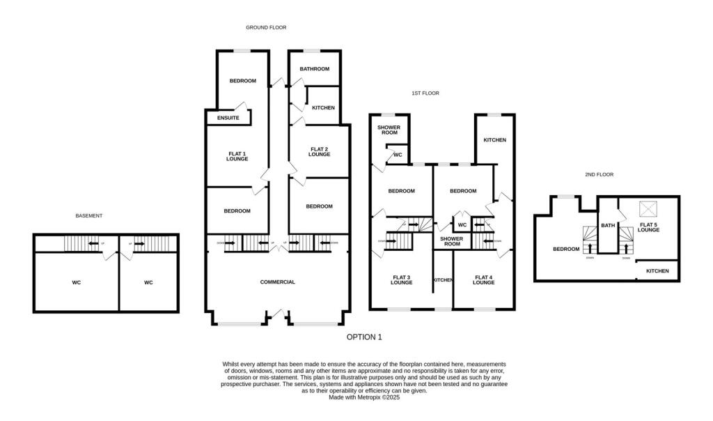
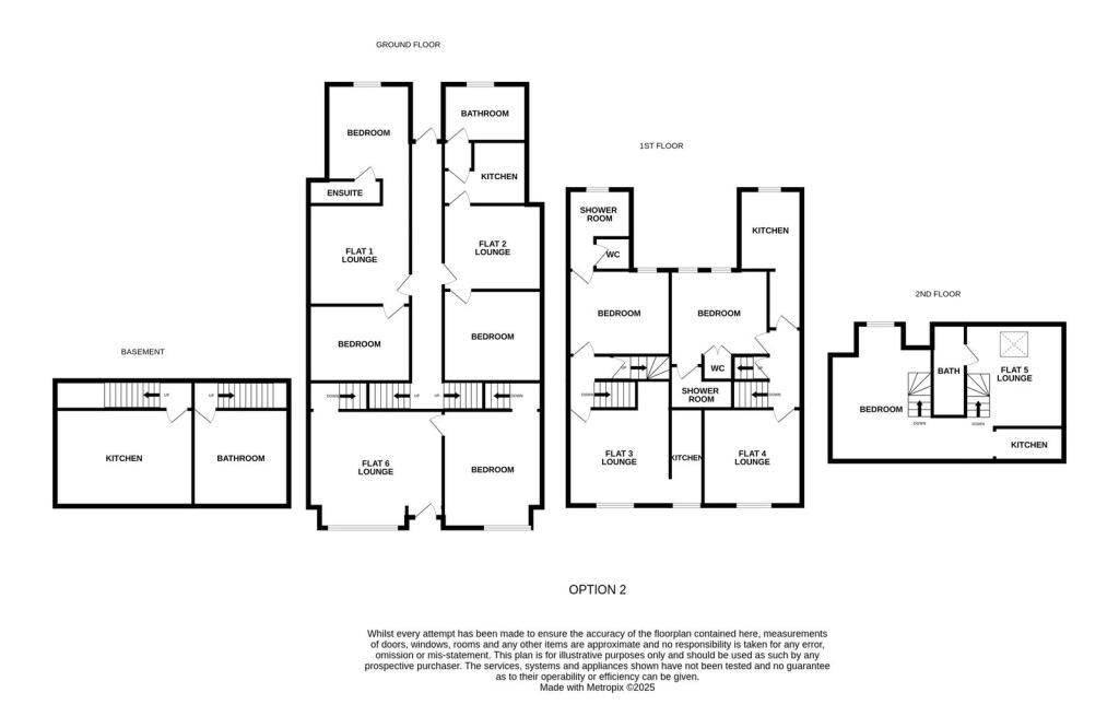
- Nearly 3,000 sq ft, double-fronted, four-storey building
- Existing mixed-use planning permission for four luxury apartments and two commercial units (subject to planning)
- Currently configured as commercial space with six treatment/office rooms and waiting areas
- Recently refurbished ground floor with contemporary finishes
- Excellent rental demand and capital growth potential in a thriving area
Discover a rare opportunity to shape your future in one of Sheffield’s most prestigious locations. This expansive, double-fronted, four-storey building offers nearly 3,000 sq ft of versatile space, suitable for premium residential or mixed-use redevelopment. Nestled on Ecclesall Road, recognized for its bustling retail and lifestyle scene, the property is primed for transformation into luxury apartments coupled with high-demand commercial units.
Built in the early 20th century, the structured layout includes large treatment rooms bathed in natural light and ample storage, making it an ideal canvas for developers or investors. With services already split and average council tax costs, the property allows for immediate commercialization or conversion, maximizing potential returns. While currently in need of full residential integration, the property’s well-maintained exterior and high-quality ground floor finishes create an inviting first impression.
This exceptional investment opportunity is chain-free and is being presented to the market for the first time in over 45 years. In a family-friendly neighborhood with excellent schools and an affluent community, seize the moment to develop in a locale where demand for rental and housing continues to expand. Inquire today to explore the possibilities and capture this unique asset before it’s gone!
Commercial development for sale in 605 Ecclesall Road, Sheffield, S11 8PT, S11 — POA • 1 bed • 1 bath • 5545 ft²
7 bedroom terraced house for sale in Priory Avenue, Sheffield, South Yorkshire, S7 — £245,000 • 7 bed • 2 bath • 1792 ft²
Commercial property for sale in Hickmott Road, Hunters Bar, Sheffield, S11 — £225,000 • 3 bed • 1 bath • 688 ft²
Commercial property for sale in 309-311 Ecclesall Road, Sheffield, South Yorkshire, S11 8NX, S11 — £1,100,000 • 1 bed • 1 bath
4 bedroom block of apartments for sale in Chesterfield Road, Sheffield, S8 — £430,000 • 4 bed • 4 bath
5 bedroom terraced house for sale in Ecclesall Road, Sheffield, S11 — £395,000 • 5 bed • 2 bath • 1982 ft²






































































