Spacious character barn with large gardens and triple garage in peaceful rural setting..
Grade II listed detached barn conversion with original beams
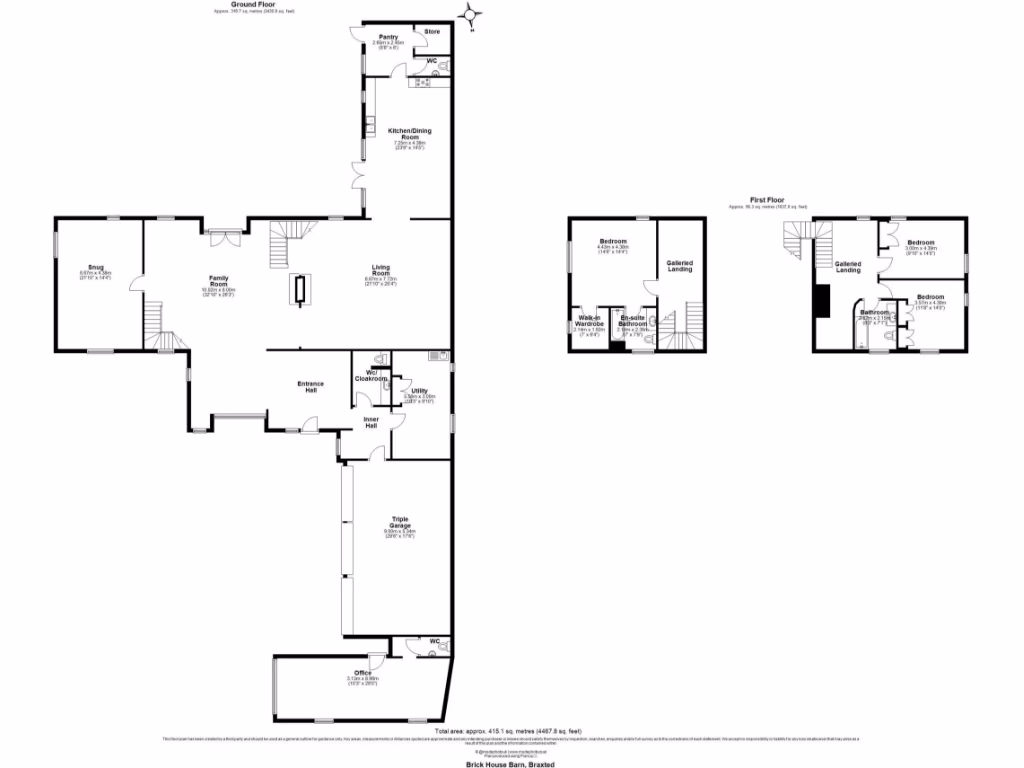
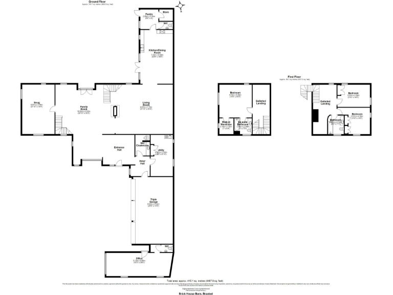
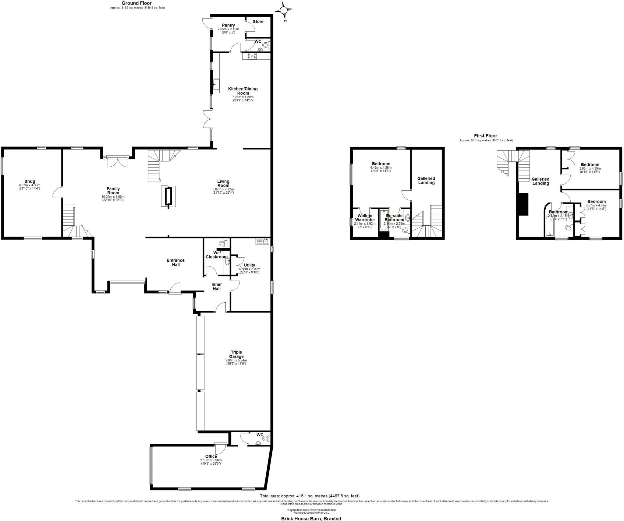
A superb Grade II listed barn conversion set in just over half an acre of landscaped gardens, this detached home combines striking period character with generous, flexible living. The vaulted family room with exposed beams and large picture windows frames garden views, while multiple reception rooms — including a snug, separate sitting room and an office with WC — suit both family life and home working. The principal suite benefits from an en suite and walk-in wardrobe; overall accommodation is spacious and well-proportioned across two floors.
Practical features include a well-equipped kitchen with pantry, utility room, two ground-floor WCs, extensive garaging/cart lodge with parking for three cars and a gravelled in-and-out driveway. The mature, private grounds and countryside aspect create a quiet rural setting but remain within easy reach of Kelvedon and Witham stations and local schools.
Buyers should note the property’s Grade II listed status: any alterations will be restricted and may involve additional time and cost. Council tax is described as quite expensive, and the size and character of the building mean ongoing maintenance and specialist repairs should be expected. The property includes an annexe providing extra accommodation, but prospective purchasers should confirm specific use and servicing details.
4 bedroom detached house for sale in Coxes Farm Road, Billericay, CM11 — £1,700,000 • 4 bed • 3 bath • 2694 ft²
6 bedroom detached house for sale in Badliss Hall Lane, Ardleigh, Colchester, Essex, CO7 — £1,795,000 • 6 bed • 6 bath • 6318 ft²
4 bedroom detached house for sale in Hollies Road, Bradwell, CM77 — £1,725,000 • 4 bed • 2 bath • 5645 ft²
Link detached house for sale in Braintree Road, Panfield, CM7 — £825,000 • 1 bed • 4 bath • 2648 ft²
4 bedroom barn conversion for sale in The Street, Bardfield Saling , CM7 — £1,000,000 • 4 bed • 3 bath • 2560 ft²
4 bedroom detached house for sale in Mill Lane, Virley, Maldon, Essex, CM9 — £1,000,000 • 4 bed • 3 bath • 3300 ft²


















































































































