Historic home on 11 acres offering stables, workshops and sweeping private grounds.
Approx. 11 acres including paddocks, orchard and pond
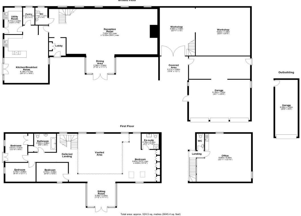
A generously proportioned four-bedroom detached barn conversion dating from the 1800s, this property combines period character with contemporary living across approximately 5,645 sq ft. Vaulted, double-height reception spaces and exposed beams create dramatic entertaining rooms, while a high-spec kitchen, pantry, utility and cloakroom support everyday family life. The principal bedroom benefits from an en-suite; three further double bedrooms and a family bathroom complete the sleeping accommodation.
Set within around 11 acres, the grounds include formal lawns, an orchard, pond, vegetable garden, a menage and equestrian paddocks. Planning permission has been granted for a new stable block with associated stores, adding practical value for riders. A gated sweeping driveway leads to multiple garages (triple garage plus separate fourth garage/store) and a courtyard with a brick pizza oven, ideal for outdoor entertaining.
An attached commercial office/workshop offers in-home business use and potential extra accommodation subject to planning (STP), providing flexibility for professional use or ancillary letting. Practical notes: broadband speeds are very slow, council tax is described as quite expensive and the property's tenure is currently unspecified. Mobile signal is excellent and flood risk is nil.
This property will suit buyers seeking a substantial family home or an equestrian-focused lifestyle in an established rural community — those prioritising large grounds, privacy and historic character. Some modernisation and connectivity upgrades may be needed to maximise daily convenience.
3 bedroom barn conversion for sale in High Easter Road, Barnston, Dunmow, CM6 — £995,000 • 3 bed • 3 bath • 1933 ft²
Barn for sale in Little Canfield, Dunmow, CM6 1SP, CM6 — £970,000 • 5 bed • 5 bath • 2573 ft²
4 bedroom detached house for sale in Braxted Road, Kelvedon, CO5 — £999,995 • 4 bed • 2 bath • 4467 ft²
3 bedroom house for sale in Chevers Hall, High Ongar, Essex, CM5 — £900,000 • 3 bed • 3 bath • 2177 ft²
5 bedroom detached house for sale in St. Marys Mews, Broxted, CM6 — £1,000,000 • 5 bed • 4 bath • 4000 ft²
2 bedroom barn conversion for sale in Tenpenny Hill, Thorrington, Colchester, Essex, CO7 — £750,000 • 2 bed • 2 bath • 1091 ft²


























































































































