WD18 8PH - 1 bed consent ready industrial in Watford, WD18 8PH

View on Property Piper

Light industrial facility for sale in Park House, Greenhill Crescent, Watford Business Park, Watford, WD18 8PH, WD18

Summary - Park House, Greenhill Crescent, Watford Business Park, Watford, WD18 8PH WD18 8PH

1 bed 1 bath Light Industrial

Large redevelopment plot with detailed B2/B8 consent near major transport links.
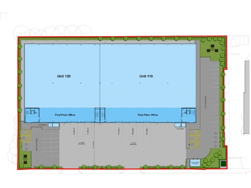
Detailed planning consent for two units totalling 57,199 sq ft GEA
2.23 acre rectangular parcel—efficient for redevelopment layouts
Excellent road links; 12 minutes to M25, close to Watford town centre
Part of established business park with bus and tube connections nearby
Parking provision on site; straightforward servicing potential
Area records high crime; security and operating costs may be higher
Very slow broadband speeds; connectivity upgrades likely necessary
Tenure unknown; legal and title checks required before exchange
Park House is a strategic B2/B8 redevelopment opportunity on a 2.23-acre rectangular parcel in the heart of Watford Business Park. Detailed planning consent (Ref: 24/00612/FULM) is in place for two semi-detached units totalling 57,199 sq ft GEA, offering immediate scope to deliver modern industrial accommodation for manufacturing, warehousing or logistics.

The site benefits from excellent regional access — two miles from Watford town centre and around twelve minutes to the M25 — placing it within a large labour and customer catchment. There is dedicated parking provision and the plot is a large, regular shape, which simplifies construction and servicing logistics.

Buyers should note material local considerations: the area records higher crime levels, broadband speeds are very slow, and the wider area shows signs of deprivation. Tenure is unspecified and will require verification. These factors should be weighed alongside the planning consent and transport strengths when assessing project viability or occupational appeal.

This opportunity suits developers or investors seeking a near-London industrial site with consented massing and flexible B2/B8 uses. With planning secured, the plot offers clearer entitlement risk; however, practical due diligence on tenure, service connections, security measures and local market requirements is essential before acquisition.

Property Details

Brochure Descriptions

Image Descriptions

Floorplan Description

Textual Property Features

Target Audience

AI Tags

Detected Visual Features

Nearby Schools

Nearest Bars And Restaurants

,,,,}

Nearest General Shops

,,}

Nearest Grocery shops

,,}

Nearest Supermarkets

,,}

Nearest Religious buildings

,,}

Nearest Medical buildings

,,,}

Nearest Airports

}

Nearest Leisure Facilities

,,,,}

Nearest Tourist attractions

,,}

Nearest Train stations

,,,,}

Nearest Bus stations and stops

,,,,}

Nearest Hotels

,,}

Tags

Local Market Stats

AirBnB Data

Similar Properties

Meta

High Res Images

Compatible Images

Low res Images

Thumbnails

Raw Images

High Res Floorplan Images

Compatible Floorplan Images

Low res Floorplan Images

FloorplanImages Thumbnail

Raw Floorplan Images