Bright, recently renovated one-bed near transport and shops.
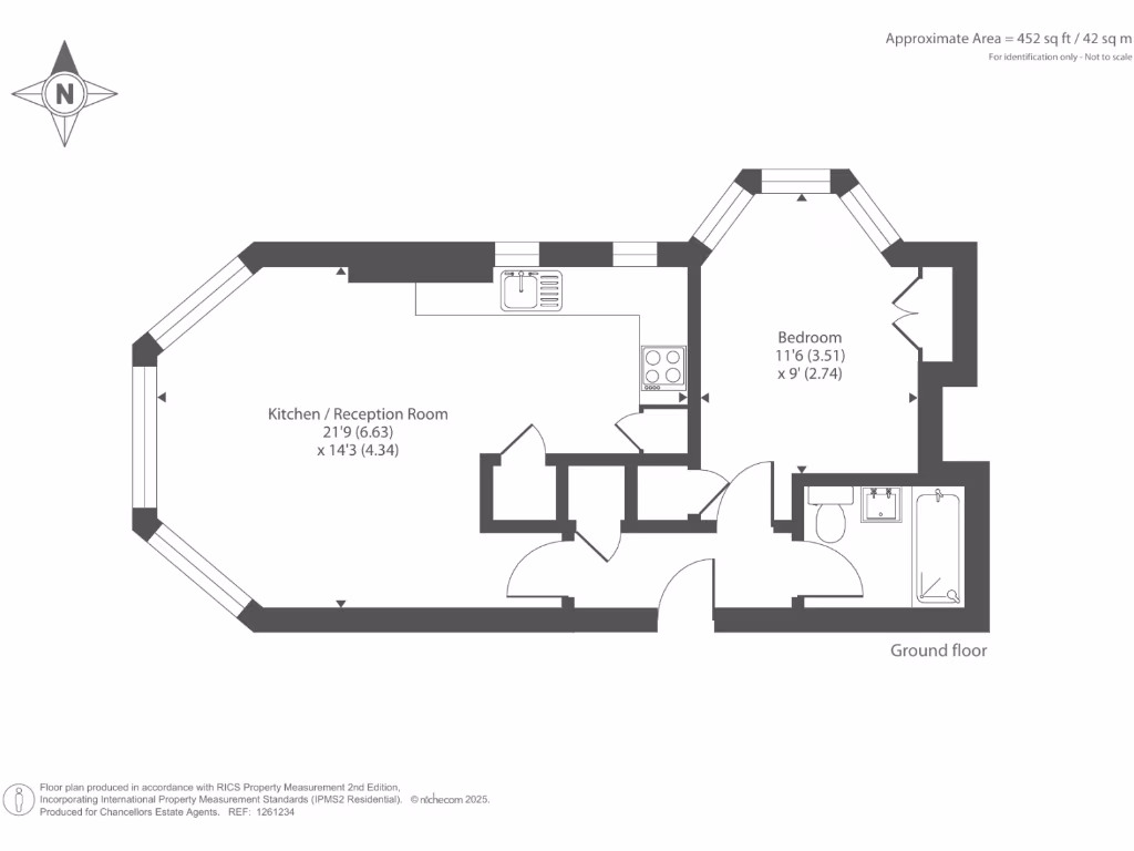
Raised ground-floor one-bedroom with open-plan reception and kitchen
This recently renovated raised-ground one-bedroom flat in Netherhall Gardens combines period character with a clean, modern finish. High ceilings, wooden floors and an open-plan reception with integrated kitchen create a bright, flexible living space across about 452 sq ft. The long lease (104 years remaining) and communal heating/hot water contribute to predictably low outgoings.
Well placed for Central London travel and local amenities, the apartment suits a first-time buyer seeking a compact, move-in-ready home in desirable Hampstead. The building’s Edwardian exterior and double-glazed windows retain period charm while the updated interior provides immediate comfort and low maintenance.
Practical points to note: heating runs via a communal boiler with electric main fuel and radiators; glazing install dates are unknown. The property sits in an area with relatively high recorded crime, which buyers should weigh alongside the excellent transport links, nearby shops and strong local schools. Solid brick construction likely lacks insulation, so consider any future energy-efficiency upgrades.
Overall, this flat offers a low-outgoings, long-lease opportunity to live in NW3 with straightforward renovation potential if you want to further personalise or increase energy efficiency. It’s a compact, convenient home for a first-time buyer or a buy-to-let investor prioritising location and immediate rental potential.
1 bedroom flat for sale in Makepeace Avenue, Highgate, N6 — £335,000 • 1 bed • 1 bath • 356 ft²
1 bedroom flat for sale in Willoughby Road, Hampstead, London, NW3 — £695,000 • 1 bed • 1 bath • 477 ft²
1 bedroom flat for sale in Netherhall Gardens,
Hampstead, NW3 — £450,000 • 1 bed • 1 bath • 431 ft²
1 bedroom flat for sale in New End Square, Hampstead, NW3 — £550,000 • 1 bed • 1 bath • 506 ft²
1 bedroom flat for sale in Huxley House, South End Green, NW3 — £525,000 • 1 bed • 1 bath • 543 ft²
1 bedroom flat for sale in Eton Place Eton College Road Belsize Park NW3 — £515,000 • 1 bed • 1 bath • 410 ft²










































































