Light-filled kitchen, private garden and garage on a quiet residential street.
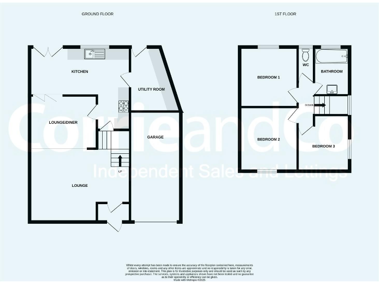
- Detached three-bedroom home with private driveway and garage
- Modern kitchen plus separate utility with appliance fittings
- Private rear garden accessed via double doors from kitchen
- Two double bedrooms and one smaller third room
- EPC D; cavity walls assumed uninsulated — insulation recommended
- Single main bathroom plus separate WC for convenience
- Mains gas central heating and double glazing installed
- Freehold, council tax band C; quiet, low-crime neighbourhood
Set on a private drive with its own garage, this three-bedroom detached house offers straightforward family living in a quiet Barrow neighbourhood. The ground floor flows from a welcoming lounge through to a modern fitted kitchen and separate utility, with double doors opening onto a private rear garden — ideal for children and casual entertaining.
Upstairs are two double bedrooms and a smaller third room suitable for a nursery or home office, served by a bathroom and a separate WC. Practical touches include mains gas central heating, double glazing and an EPC rating of D. The plot is a decent size for the area and the home benefits from good broadband and mobile signal.
Buyers should note the house dates from the 1930–49 period and cavity walls appear to have no added insulation (assumed), so upgrading insulation could be a useful improvement. The property is freehold with council tax band C; there is one principal bathroom only. Overall, this is a comfortable, well-located family property with room to modernise energy efficiency and personalise interiors.
3 bedroom semi-detached house for sale in Flass Lane, Barrow-In-Furness, LA13 — £230,000 • 3 bed • 1 bath • 948 ft²
3 bedroom detached house for sale in Valley Drive, Barrow-In-Furness, LA13 9JG, LA13 — £260,000 • 3 bed • 2 bath • 1454 ft²
4 bedroom detached house for sale in Tamworth Drive, Barrow-in-Furness, Cumbria, LA13 — £340,000 • 4 bed • 3 bath
3 bedroom detached house for sale in Chaucer Way, Barrow-in-Furness, Cumbria, LA13 — £280,000 • 3 bed • 3 bath • 958 ft²
3 bedroom detached bungalow for sale in Glenridding Drive, BARROW-IN-FURNESS, LA14 — £350,000 • 3 bed • 1 bath • 842 ft²
3 bedroom house for sale in Gloucester Street, Barrow-In-Furness, LA13 — £220,000 • 3 bed • 1 bath • 905 ft²






















































































