Spacious semi-rural home with farmland views and private garden.
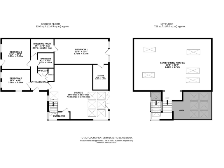
Approximately 1,875 sq ft of living space
Set in an exclusive cluster of seven individually converted barns, Barn 2 at Dunge Farm offers spacious family living in a peaceful semi-rural setting. The property combines original barn character with contemporary additions: vaulted ceilings, floor-to-ceiling glazing and a thoughtfully extended plan that delivers generous, light-filled rooms and far-reaching farmland views.
The house extends to approximately 1,875 sq ft and provides three double bedrooms and two bathrooms arranged for flexible family use. The ground and first-floor layout gives separation between entertaining and sleeping areas, with a striking living room featuring a part-vaulted ceiling, a wood-burning stove and glazed doors opening to a patio and lawn. The first-floor open-plan kitchen, dining and family area is fitted with modern, high-gloss units and integrated appliances, plus a breakfast bar for informal dining.
Practical benefits include off-street block-paved parking for two cars, an additional visitor space, recently installed boiler, fast fibre broadband and double glazing. The long lease (979 years remaining) offers security of tenure, while the hamlet location delivers very low crime and attractive local schools nearby.
Buyers should note this is a leasehold property and council tax is described as quite expensive. The property sits in a remote, semi-rural community where mobile signal is average; commuting and some amenities will be more limited than in town. Overall, this is a spacious, characterful home ideal for families seeking a calm countryside lifestyle with contemporary living spaces and excellent views over farmland.
3 bedroom barn conversion for sale in Dunge Farm, Over Alderley, SK10 — £975,000 • 3 bed • 3 bath • 1574 ft²
4 bedroom barn conversion for sale in Hollin Lane, Sutton, Macclesfield, Cheshire, SK11 — £1,175,000 • 4 bed • 4 bath • 3012 ft²
4 bedroom semi-detached house for sale in Coppice Road, Poynton, SK12 — £875,000 • 4 bed • 3 bath • 1863 ft²
4 bedroom barn conversion for sale in Glossop Road, Stockport, SK6 — £950,000 • 4 bed • 2 bath • 2338 ft²
4 bedroom barn conversion for sale in 2 Acre View, Whitegates lane Strinesdale Saddleworth, OL4 — £879,000 • 4 bed • 3 bath • 1920 ft²
4 bedroom detached house for sale in Fieldview Barn, Woodford Road, Poynton, SK12 1DY, SK12 — £1,690,000 • 4 bed • 3 bath • 3909 ft²






























































































