Spacious character property on a large private plot for family living.
Converted barn with original oak beams and vaulted ceilings
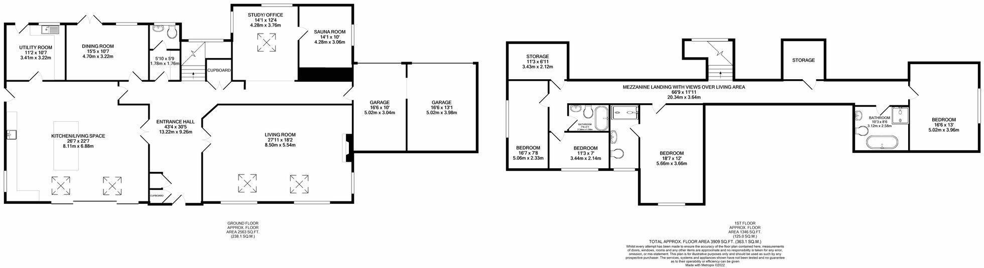
A striking converted barn offering expansive, turn-key family living on a substantial plot at the Poynton/Woodford border. Original oak beams, vaulted ceilings and a full-height galleried landing give the principal reception an impressive, cathedral-like feel while large windows and skylights flood the interior with daylight.
The accommodation is arranged over two floors and includes three formal reception rooms, a generous dining kitchen with integrated appliances, utility room, sauna/wet room, and an integral double garage with internal access. Four double bedrooms and three bathrooms — including an en-suite and a four-piece family bathroom — make this well suited to families who need space and flexible reception areas.
Practical benefits include gated off-road parking, a sweeping driveway, large private gardens mainly laid to lawn, fast broadband, excellent mobile signal and no flood risk. The property is offered freehold and chain free, recently renovated to a high standard throughout for immediate occupation.
Important practical points: the EPC is rated E and the building retains solid brick walls (assumed uninsulated), typical of older barn conversions, so heating costs and insulation upgrades should be considered. Council tax is described as very expensive. These are material running-cost factors to weigh against the property’s size and character.
4 bedroom semi-detached house for sale in Coppice Road, Poynton, SK12 — £875,000 • 4 bed • 3 bath • 1863 ft²
4 bedroom detached house for sale in Hague Road, Broadbottom, Hyde, Greater Manchester, SK14 — £725,000 • 4 bed • 3 bath • 2627 ft²
4 bedroom barn conversion for sale in Broadhey Barns, Diglee Road, Furness Vale, High Peak, SK23 — £699,950 • 4 bed • 3 bath • 1556 ft²
4 bedroom barn conversion for sale in Glossop Road, Stockport, SK6 — £950,000 • 4 bed • 2 bath • 2338 ft²
4 bedroom barn conversion for sale in Hind Heath Road, Sandbach, CW11 — £799,000 • 4 bed • 3 bath • 2753 ft²
2 bedroom barn conversion for sale in Uplands Road, Werneth Low, SK14 — £575,000 • 2 bed • 2 bath • 1194 ft²














































































































