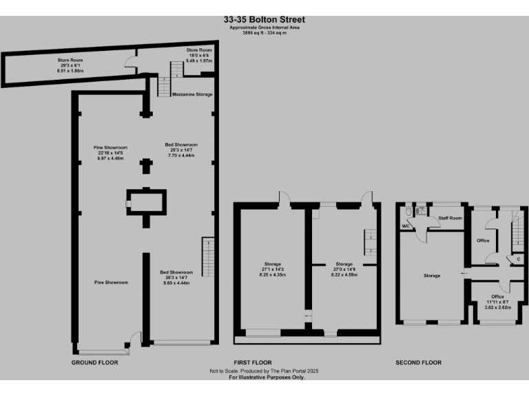
**Standout Features:**
- Freehold commercial property with three floors
- Large ground floor showroom space (~174 m²) previously used for furniture display
- Potential for conversion into 2 commercial units and 4 residential flats (subject to planning)
- Rear parking for up to 4 vehicles, accessed from Glenmore Road
- Prominent location on Bolton Street, close to Brixham Town Centre, with high foot traffic
**Potential Concerns:**
- Previous planning permission for conversion has lapsed; new application required
- Structural repairs needed, including roof repairs and exterior paint restoration
- Area has an above-average crime rate and is classified as deprived
**Summary:**
Discover an exceptional investment opportunity at 33-35 Bolton Street, Brixham—a freehold property offering three spacious floors of versatile commercial and residential potential. The expansive ground floor, featuring a generous open showroom area, is perfect for retail or service operations, while the upper levels provide further flexible space ideal for conversion into residential flats. This substantial property, with approximately 3,595 square feet of space, boasts excellent visibility in a bustling area popular with locals and tourists alike, ensuring your business benefits from high footfall.
Given the existing rear parking for up to four vehicles, ease of access is a convenient plus. However, it’s important to note the need for structural repairs and the lapsed planning permission, requiring a fresh application for development. Seize this rare chance for both investors and developers to transform this mixed-use building into lucrative commercial units and quality residential living in a vibrant community. Act quickly—opportunities like this in sought-after locations don’t last long!
Commercial property for sale in Brixham, TQ5 — £75,000 • 1 bed • 1 bath • 613 ft²
High street retail property for sale in Fore Street, Brixham, Devon, TQ5 — £250,000 • 1 bed • 1 bath
Residential development for sale in Fore Street, TQ5 — £300,000 • 4 bed • 2 bath • 1555 ft²
Shop for sale in Fore Street, Brixham, TQ5 — £260,000 • 3 bed • 2 bath • 1345 ft²
Residential development for sale in Brixham, TQ5 — £220,000 • 1 bed • 1 bath
Shop for sale in Middle Street, Brixham, TQ5 — £23,000 • 3 bed • 1 bath • 1382 ft²


































































