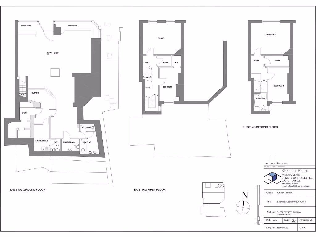
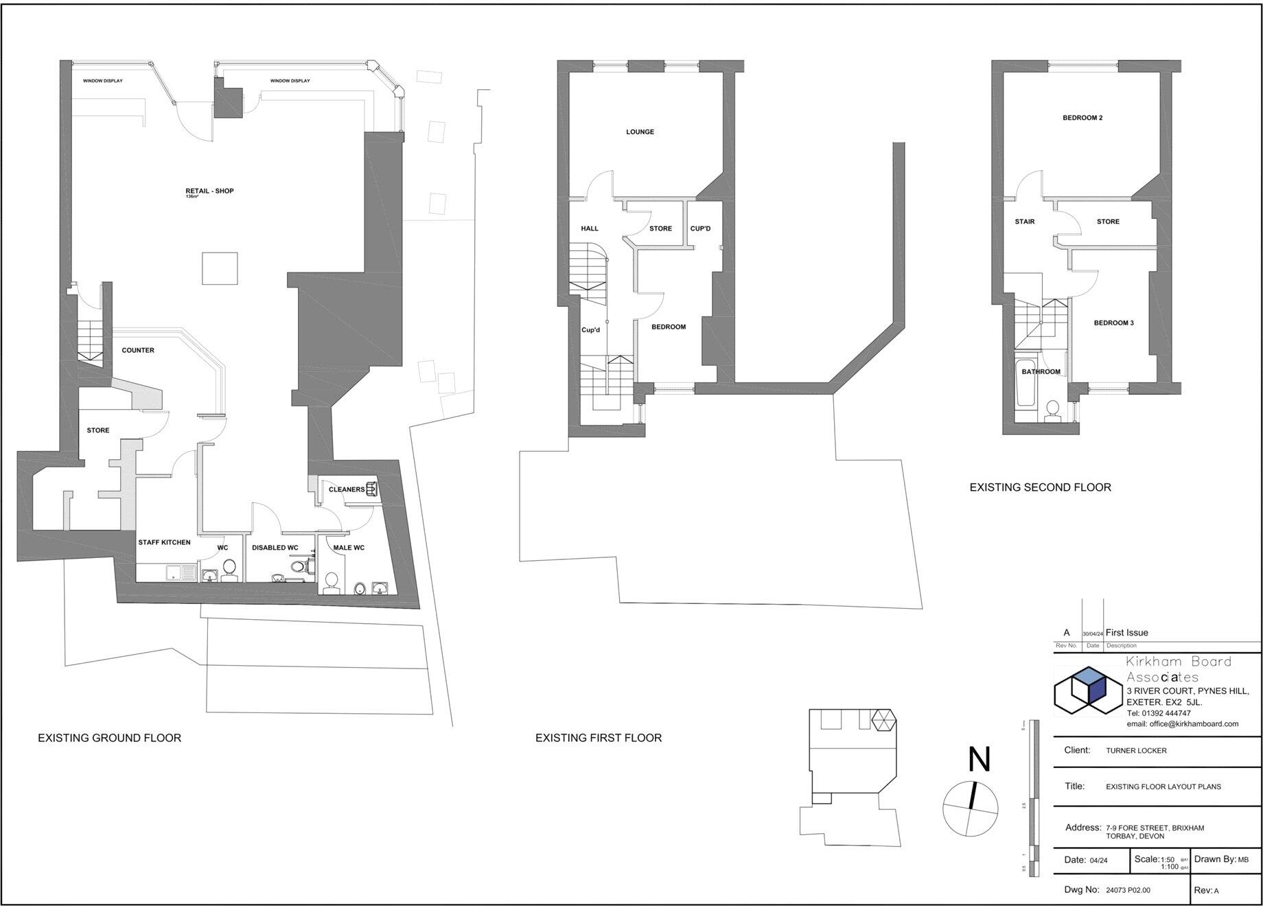
**Standout Features:**
- Victorian-style freehold property located on a pedestrian high street in Brixham
- Ground floor commercial unit ideal for retail use with large display windows
- Two upper floors with potential for residential conversion
- Freehold tenure offers autonomy in property use
- Excellent broadband speeds and mobile signal
- Historic charm with granite or whinstone walls
- Great redevelopment potential, suitable for mixed-use
**Potential Concerns:**
- Requires substantial refurbishment and modernization
- No garden or external recreational space
- Limited scenic views, facing the street
- Above average crime rate in the area
- Currently lacks insulation, assumed potential damp
**Summary Description:**
Discover the potential of this remarkable Victorian freehold property in the bustling heart of Brixham. With an expansive ground-floor commercial unit that boasts large windows ideal for retail display, this space invites entrepreneurial spirits to build a thriving business. The upper floors present versatile options for residential conversion, providing an exciting investment opportunity. While some modernization is necessary, the property's historic charm and central location hold immense possibilities.
Situated within close proximity to good-rated primary and secondary schools, this property is perfect for families seeking convenient living arrangements. Local amenities abound, including cafes, supermarkets, and healthcare facilities, ensuring your lifestyle needs are met with ease. However, the property's location comes with the need for mindful navigation, as the area has an above-average crime rate and limited outdoor space.
Embrace the chance to transform this hidden gem into a stylish commercial-residential blend, perfectly positioned for future growth in an evolving neighborhood. Don’t miss out on your chance to invest in this unique opportunity—properties like this don’t last long in today’s market!
Shop for sale in Fore Street, Brixham, TQ5 — £260,000 • 3 bed • 2 bath • 1345 ft²
Commercial property for sale in Brixham, TQ5 — £325,000 • 1 bed • 1 bath • 3595 ft²
1 bedroom house for sale in Drew Street, Brixham, TQ5 — £160,000 • 1 bed • 1 bath • 1054 ft²
Residential development for sale in Fore Street, TQ5 — £300,000 • 4 bed • 2 bath • 1555 ft²
2 bedroom terraced house for sale in Station Hill, Brixham, Devon, TQ5 — £170,000 • 2 bed • 1 bath • 815 ft²
Shop for sale in Middle Street, Brixham, TQ5 — £23,000 • 3 bed • 1 bath • 1382 ft²


































































